Es necesario registrarse
Por favor inicie sesión para añadir esta propiedad como favorita.
¡Cree una alerta de búsqueda personalizada y sea el primero en enterarse de nuevas propiedades!
Crear una alerta de búsqueda Regístrese ahora y cree su alerta de búsqueda y reciba automáticamente un correo electrónico con detalles de las últimas propiedades que coincidan con sus criterios de búsqueda. La búsqueda se puede modificar o eliminar en cualquier momento.
Favoritos Si desea guardar una propiedad en los favoritos de su cuenta, sólo tiene que hacer clic en el ♡ situado en la esquina superior derecha del exposé on-line.
Encantadora casa de pueblo con espacio comercial y piscina en el corazón de Binissalem
Casa, Comprar | España, Mallorca, Central, Binissalem
1.750.000 EUR
Precio
5
Dormitorios
2
Baños
550 ㎡
Espacio habitable
550 ㎡
Superficie total
387 ㎡
Superficie de parcela
E&V ID W-030X5T
Solicitar más información
Servicios y características especiales de esta casa
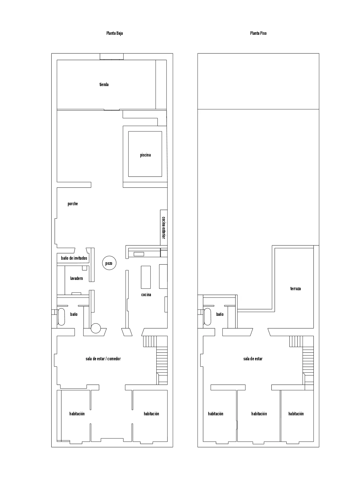
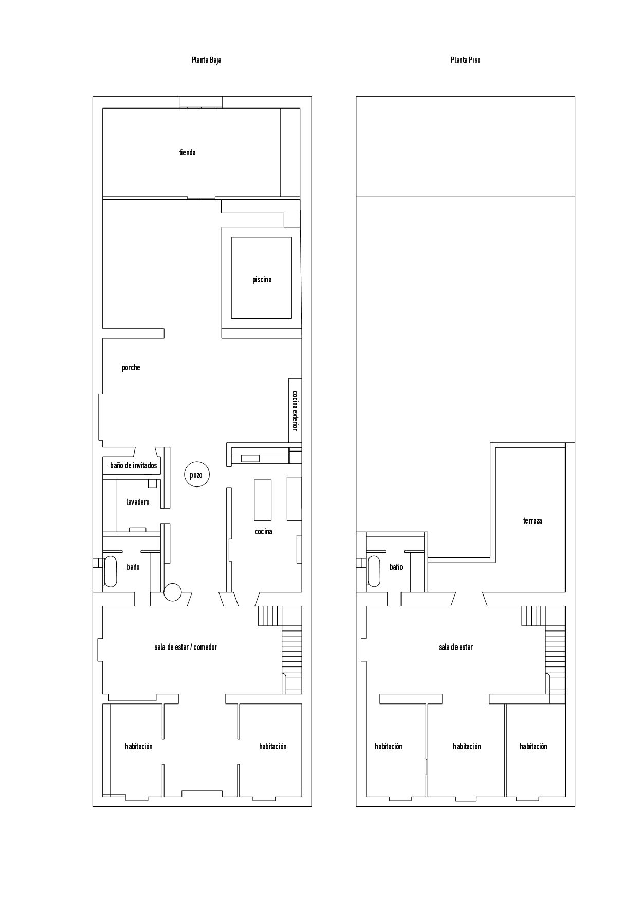
Tipo: Casa • Región: Central • Año de construcción: 1865 • Última restauración: 2021 • Superficie total: 550 ㎡ • Total de habitaciones: 6 • Dormitorios: 5 • Baños: 2 • Espacio habitable: 550 ㎡ • Superfície de parcela: 387 ㎡ • Balcones: 1 • Terraza • Cocina • Chimenea • Piscina • Aseo de cortesia • Tipo de calefacción: Ecológica • Revestimiento del suelo: Baldosas, Piedra
Esta elegante casa de pueblo con espacio comercial se encuentra en una de las calles más bonitas de Binissalem, un animado pueblo vinícola situado al pie de la sierra de Tramuntana, a solo 25 minutos de Palma. Su ubicación ofrece tranquilidad sin renunciar a la cercanía de la estación de tren, lo que la hace ideal para residencia habitual, desplazamientos diarios o para emprender un negocio boutique.
La casa data de 1865 y fue renovada con gran gusto en 2017. Cuenta con cinco dormitorios distribuidos en dos plantas, con suelos, ventanas y carpintería originales que reflejan el auténtico carácter mallorquín. Dispone de dos amplios baños con duchas tipo lluvia y bañeras grandes, además de un aseo de cortesía. La cocina, con isla central, conecta con el comedor y el patio, creando un espacio ideal para recibir invitados.
En la planta superior se encuentra una sala de estar con acceso a una terraza privada con vistas a la montaña. En la planta baja, el salón-comedor se abre al patio ajardinado. Además, dispone de una buhardilla de 100 m² con gran potencial de almacenamiento o adaptación.
El espacio comercial, de aproximadamente 45 m², cuenta con aire acondicionado, suelos de cemento pulido y grandes ventanales con marcos de acero, lo que lo hace ideal como showroom, oficina o estudio. Existe la posibilidad de construir dos plantas adicionales.
El exterior es un oasis mediterráneo con limoneros, buganvillas, aloe y un rosal Banksiano adulto. El patio, pavimentado con piedra de Binissalem, alberga una piscina de agua salada con sistema de contracorriente y una cocina exterior cubierta, perfecta para veladas al aire libre.
En cuanto a sostenibilidad, la propiedad dispone de un sistema fotovoltaico con 17 paneles solares y batería de 7 kW, cisternas para recogida de agua de lluvia, techos recientemente aislados, estufas de pellets, chimenea cerrada y radiadores eléctricos toalleros en los baños.
Con tres accesos independientes, la vivienda ofrece la máxima flexibilidad y privacidad. Una oportunidad única de combinar el encanto mallorquín con confort moderno y potencial comercial.
Engel & Völkers Santa María
Aviso Legal
Número de registro: GOIBE728083/2024
Binissalem: Ubicación y alrededores de este inmueble
El municipio de Binissalem está situado en el centro de la isla, cuenta con más de 8.800 habitantes y destaca por su arquitectura en piedra; la conocida piedra de Binissalem, y por su producción de vino de alta calidad con denominación de origen en sus caldos, así como por su hermoso paisaje. En Binissalem se encuentra la famosa bodega José Ferrer, con una gran variedad de vinos y con múltiples experiencias enogastronómicas. Cuenta con una amplia oferta gastronómica, recomendamos el Restaurante Terra di Vino que es uno de los favoritos entre los lugareños y los turistas, sirviendo comida de primera calidad. Sus valles llanos ofrecen rutas relativamente fáciles para el senderismo y el ciclismo, y las montañas de los alrededores ofrecen unas vistas impresionantes. Muchos también disfrutan de visitar los viñedos locales para realizar visitas y catas. Cuenta con dos eventos principales que tienen lugar cada año, la fiesta del vino "Festa des Vermar", que se celebra en septiembre, y una demostración anual de artesanos canteros, que suele tener lugar en mayo. Está a unos 25 minutos del aeropuerto, así como a 30 minutos del centro de Palma y sus playas, por lo que es ideal para los amantes de la naturaleza que no quieren alejarse demasiado de la vida en la capital.
Información energética
Año de construcción: 1865 • Tipo de calefacción: Ecológica
Estos inmuebles también le podrían interesar
Condiciones generales
Disponibilidad a acordar
Engel & Völkers interviene únicamente como intermediario y, por lo tanto, no puede ofrecer asesoramiento legal ni urbanístico, ni dar garantía alguna sobre el estado de los inmuebles ofrecidos. Todos los datos se basan exclusivamente en información proporcionada a Engel & Völkers por los propietarios y por lo tanto Engel & Völkers no asume ninguna responsabilidad por la integridad, exactitud y actualidad de estos datos. La oferta se sujeta a errores, cambios de precio, omisión y/o retirada del mercado sin aviso previo. Se recomienda contratar un abogado especializado para verificar el estado legal y urbanístico de la propiedad y, en caso necesario, un perito independiente que compruebe el estado de la propiedad. Disponibilidad a acordar. Los gastos de transmisión patrimonial, IVA, notario y registro corren a cargo del comprador. Según la Hoja de encargo, los gastos de intermediación corren a cargo del vendedor.
Contáctenos
EV Mallorca Property S.L. trata sus datos según nuestras v. Los recogemos para administrar su cuenta, y si acepta, enviarle comunicaciones comerciales nuestras y del grupo Engel & Völkers. Puede ejercer sus derechos de acceso, rectificación, supresión y oposición, entre otros, según nuestras Condiciones de Uso y Privacidad.