Registratie vereist
Log in om deze woning op te slaan als uw favoriet.
Maak nu een persoonlijke zoekopdracht aan en hoor als eerste over nieuwe woningen!
Zoekopdracht aanmaken Meld u nu aan en creëer uw persoonlijke zoekopdracht. U ontvangt dan automatisch de nieuwste woningen per e-mail die aan uw zoekcriteria voldoen. U kunt uw zoekopdracht op elk moment aanpassen of verwijderen.
Favorieten Als u een woning wilt opslaan in uw favorieten, klikt u gewoon op de ♡ in de rechterbovenhoek van de online exposé.
Authentiek dorpshuis met bouwvergunning voor renovatie in Lloret de Vistalegre
Huis, Kopen | Spanje, Mallorca, Centraal, Lloret de Vista Alegre
490.000 EUR
Prijs
3
Slaapkamers
4
Badkamers
296 ㎡
Woonruimte
296 ㎡
Totale oppervlakte
410 ㎡
Perceeloppervlakte
E&V ID W-048H7U
Vraag meer informatie aan
Voorzieningen en speciale kenmerken van dit huis
Type: Huis • Regio: Centraal • Bouwjaar: 1800 • Totale oppervlakte: 296 ㎡ • Totaal aantal kamers: 2 • Slaapkamers: 3 • Badkamers: 4 • Woonruimte: 296 ㎡ • Perceelgrootte: 410 ㎡ • Parkeerplaatsen: 1 • Terras • Keuken • Zwembad • Type verwarming: Centrale verwarming, Vloerverwarming, Kanaal airconditioner • Vloertype: Steen
Dit uitzonderlijke pand is een echt historisch juweeltje uit 1800 en is een van de oudste huizen in de regio. De geklasseerde gevel benadrukt de belangrijke architecturale waarde en bewaart het originele Mallorcaanse karakter.
Het pand ligt in een rustige straat met weinig verkeer en biedt een zeldzame kans om een uitzonderlijke woning te realiseren in een authentieke en rustige omgeving.
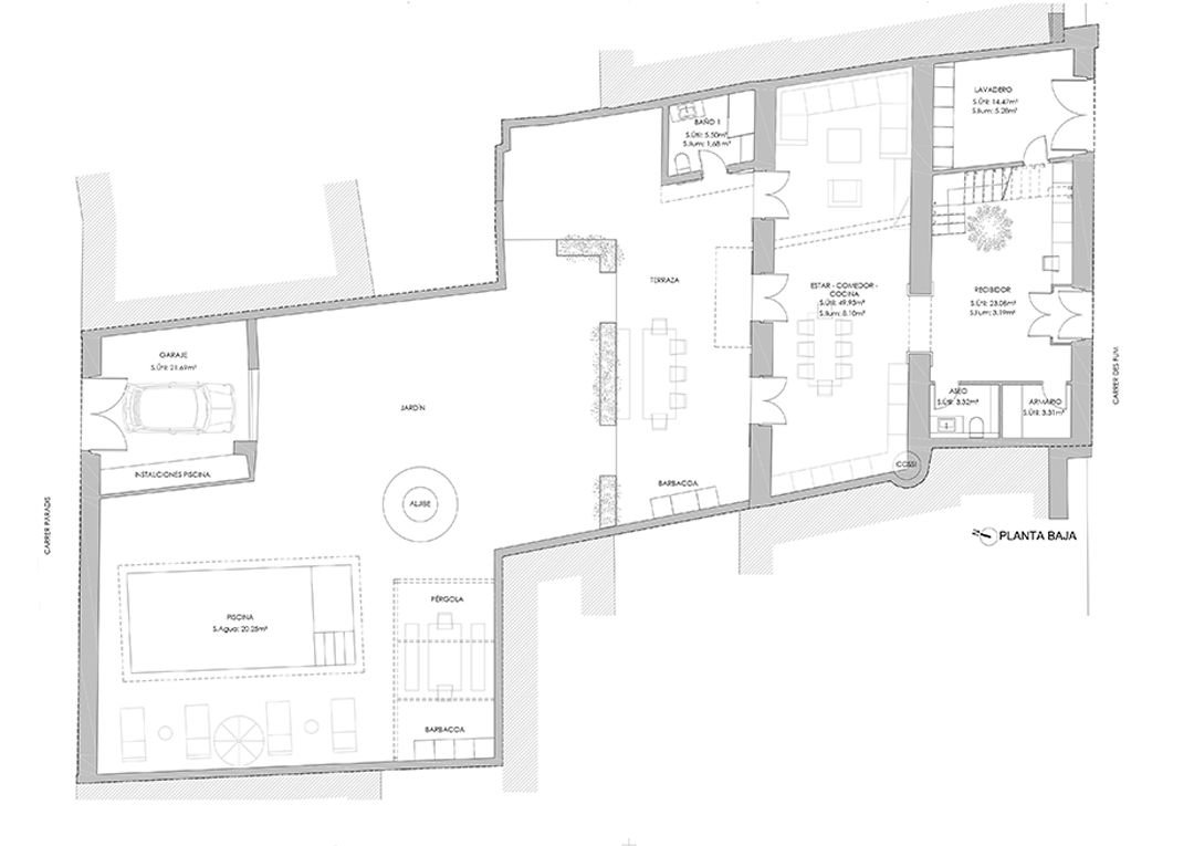
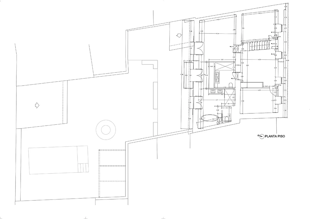
Het huis wordt aangeboden met bouwvergunning voor renovatie. Het goedgekeurde project voorziet in een exclusief woonconcept dat historische charme combineert met modern wooncomfort. Er zijn twee verdiepingen gepland met in totaal 3 slaapkamers, 3 badkamers en een gastentoilet.
De begane grond krijgt een ruime entree die leidt naar een open woon-, eet- en keukenruimte met grote ramen en directe toegang tot de tuin. Op de bovenverdieping komen drie slaapkamers en een ruime bibliotheek of multifunctionele woonkamer. De master suite is voorzien van een kleedkamer en een eigen badkamer met uitzicht op de tuin.
De buitenruimte is ontworpen als een mediterrane oase van welzijn en omvat een tuin, een terras met barbecueplaats en een zoutwaterzwembad met buitenbad - ideaal om optimaal te genieten van de mediterrane levensstijl.
Het pand heeft waardevolle originele elementen zoals natuurstenen muren, traditioneel houtwerk, zichtbare houten balken en antieke houten deuren, die harmonieus kunnen worden geïntegreerd in het renovatieconcept en het huis zijn speciale karakter geven.
Er is ook de mogelijkheid om moderne bouwtechnologie te integreren, zoals aerothermische energie, vloerverwarming en fotovoltaïsche systemen om een energie-efficiënt en duurzaam huis te creëren.
Een uitzonderlijke kans om een huis met geschiedenis en individuele persoonlijkheid te realiseren op een bevoorrechte locatie.
Engel & Völkers Santa María
Wettelijke kennisgeving
Registratienummer: GOIBE728083/2024
Lloret de Vista Alegre: Locatie en omgeving van deze woning
Het kleine dorpje Lloret heeft ongeveer 1.200 inwoners en ligt in het centrum van Mallorca. Het hart van het gebied ligt op een klein plateau dat prachtige uitzichten biedt. De molens en waterputten vallen op door hun karakter, evenals "Sa Comuna" - een natuurlijke ruimte voor openbaar gebruik die bestaat uit dennenbossen, waar mensen samenkomen om feesten en andere evenementen te vieren. Het meest populaire feest is "Es Sequer", een eerbetoon aan de vijg, een van de meest typische en overvloedige vruchten in Lloret. Je vindt er ook verse en gedroogde vijgen, vijgenjam, vijgenijs, vijgencoca (gebak) en andere gerechten op basis van deze heerlijke vrucht. Het dorp biedt onder andere verschillende kruidenierswinkels, restaurants, coffeeshops en een apotheek. Lloret ligt op ongeveer 25 minuten van het centrum van Palma en het vliegveld, en 30 minuten van de dichtstbijzijnde stranden.
Energie-informatie
Bouwjaar: 1800 • Energieverbruiks index: 44.1 kWh/(m2*a) • CO2-uitstoot: 13.8 kg/m2 • CO2-emissie klasse: C • Energie-efficiëntieklasse: C
Deze woningen kunnen u misschien ook interesseren
Makelaarscourtage
Beschikbaarheid na overeenkomst
Engel & Völkers treedt uitsluitend op als tussenpersoon en kan in die hoedanigheid geen juridisch advies verstrekken over bouwvoorschriften of andere juridische aangelegenheden, noch kan het de staat van de aangeboden eigendommen garanderen. Alle informatie is uitsluitend gebaseerd op gegevens die door de eigenaren aan Engel & Völkers zijn verstrekt, en daarom wordt geen garantie gegeven met betrekking tot de volledigheid, nauwkeurigheid en actualiteit van deze informatie. Het aanbod is onder voorbehoud van fouten, prijswijzigingen, weglatingen en/of terugtrekking uit de markt zonder voorafgaande kennisgeving. Het wordt aanbevolen om een gespecialiseerde advocaat in te schakelen om de juridische en stedenbouwkundige status van het pand te verifiëren en, indien nodig, een onafhankelijke landmeter om de status van het pand te controleren. Beschikbaarheid overeen te komen. Overdrachtskosten, btw, notaris- en registratiekosten die bij de aankoop moeten worden betaald, zijn voor rekening van de koper. Volgens het verkoopformulier zijn de makelaarskosten voor rekening van de verkoper.
Neem contact op met adviseur
Neem contact met ons op
EV Mallorca Property S.L. verwerkt uw gegevens volgens onze Gebruiksvoorwaarden en privacy. Wij verzamelen deze gegevens om uw account te beheren en, indien u dit aanvaardt, om u commerciële berichten van ons en de Engel & Völkers-groep te sturen. U kunt uw recht op toegang, rectificatie, verwijdering en bezwaar onder andere uitoefenen conform onze Gebruiksvoorwaarden en privacy.