Войти
Пожалуйста, войдите в систему, чтобы сохранить этот объект в качестве избранного.
Создайте свои личные критерии поиска и узнавайте первыми о новых объектах!
Создайте поисковые оповещения Зарегистрируйтесь сейчас, создайте свои личные критерии поиска и Вы автоматически будете получать электронные письма с подробной информацией о новых объектах недвижимости, которые соответствуют Вашим критериям. Поиск может быть изменён или удалён в любое время.
Избранное Если Вы хотите добавить недвижимость в избранные в Вашем аккаунте, просто нажмите на ♡ в правом верхнем углу.
Участок в тихом месте между Москари и Сельвой
Земельные участки, Купить | Испания, Mallorca, Центральный район, Moscari
520.000 EUR
Цена
1,68 ㏊
Площадь участка
E&V ID W-02ZA6M
Запросить дополнительную информацию
Удобства и особенности этого участка
Тип: Земельные участки • Регион: Центральный район • Площадь участка: 1,68 ㏊
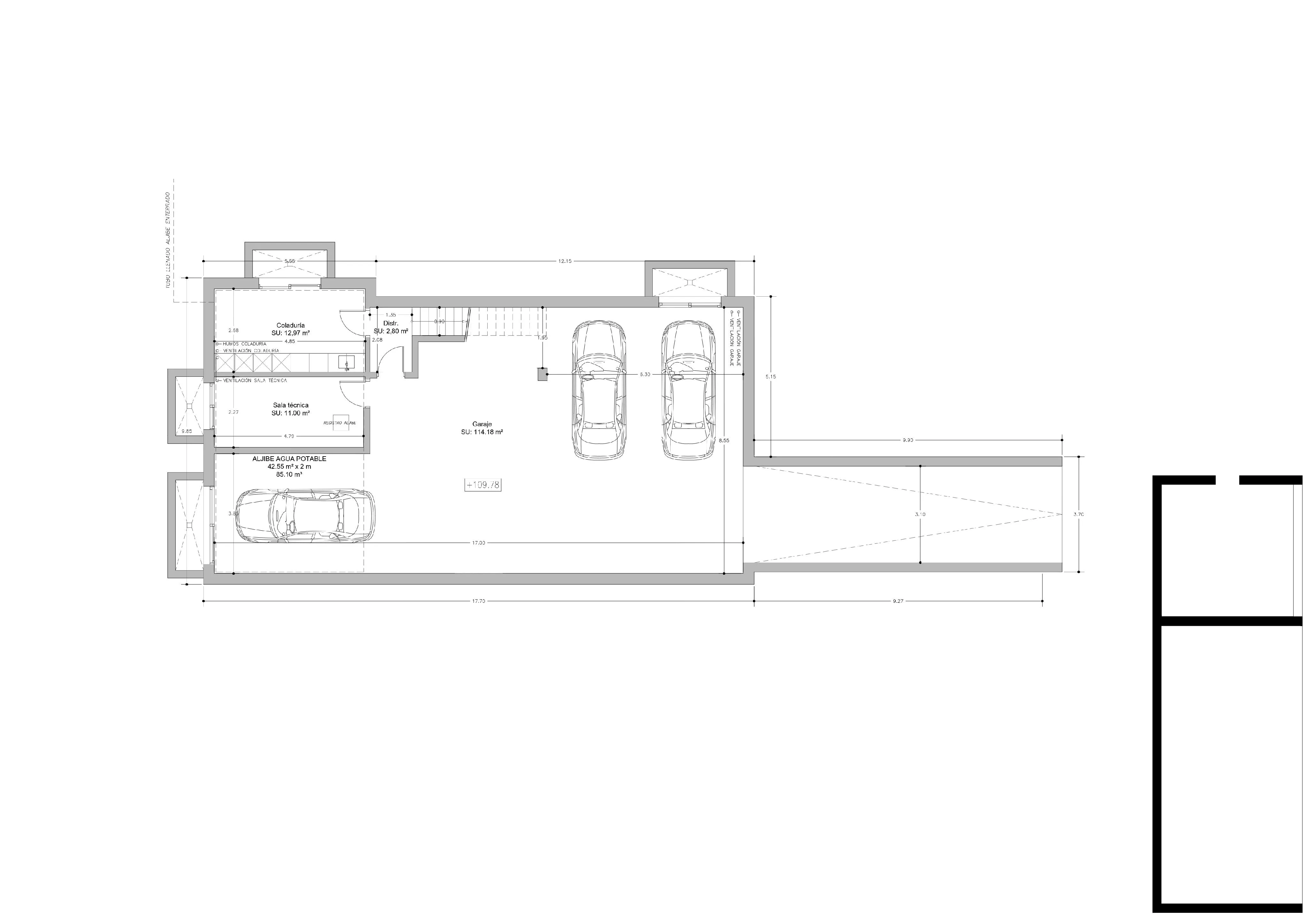
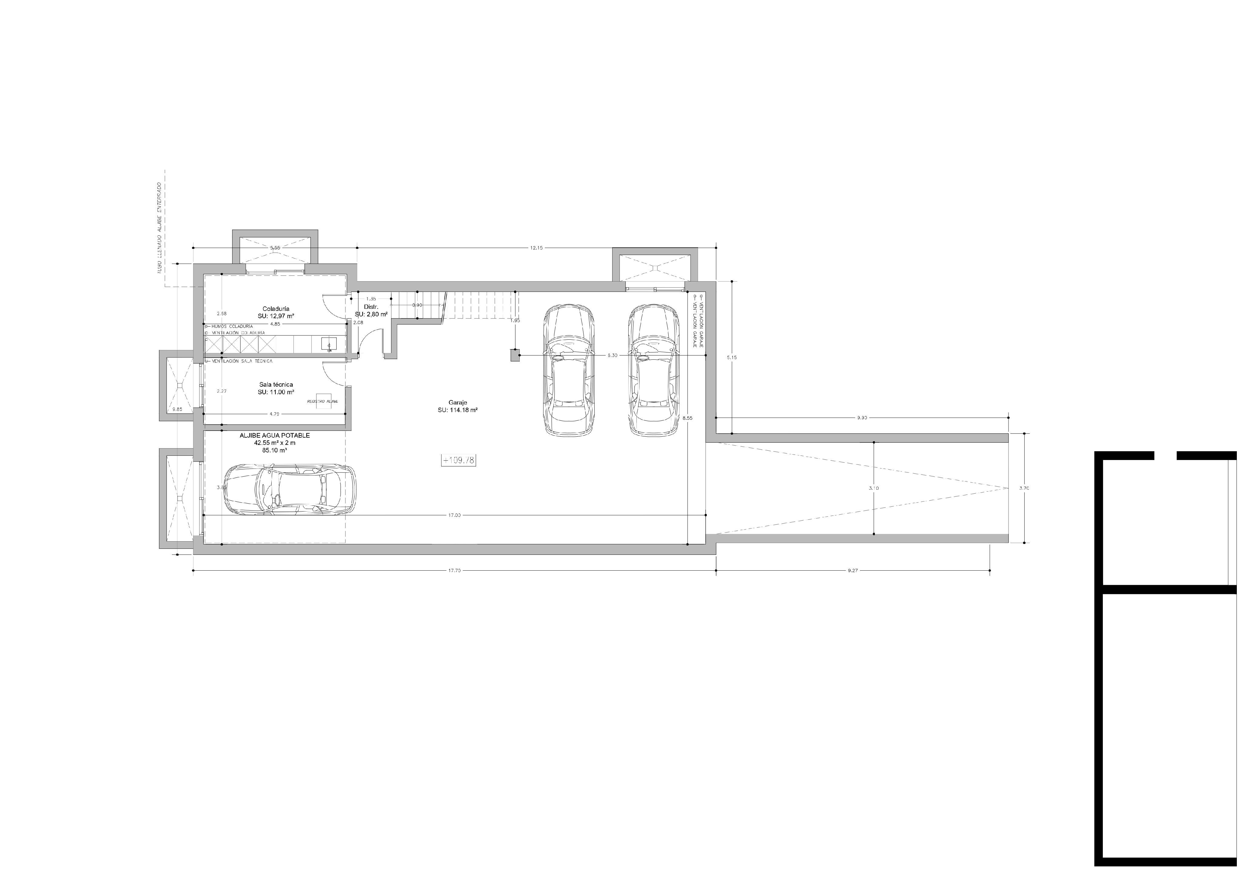
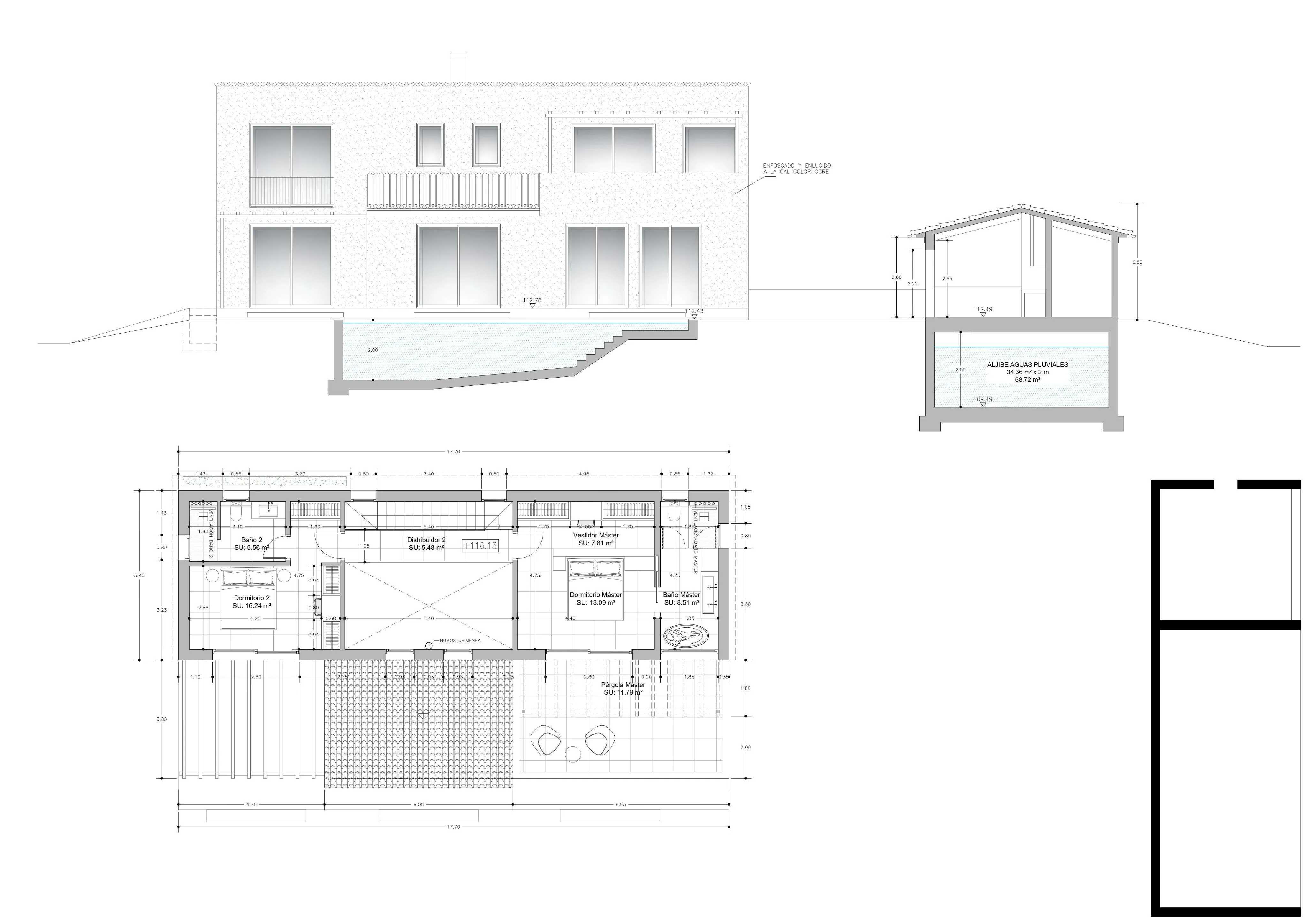
Запланированная в тихом и уединенном районе между Москари и Сельвой, эта современная вилла-новостройка возводится на обширном участке площадью около 16 786 м². Проект был пересмотрен в 2023 году и в настоящее время находится в процессе получения окончательной лицензии на строительство.
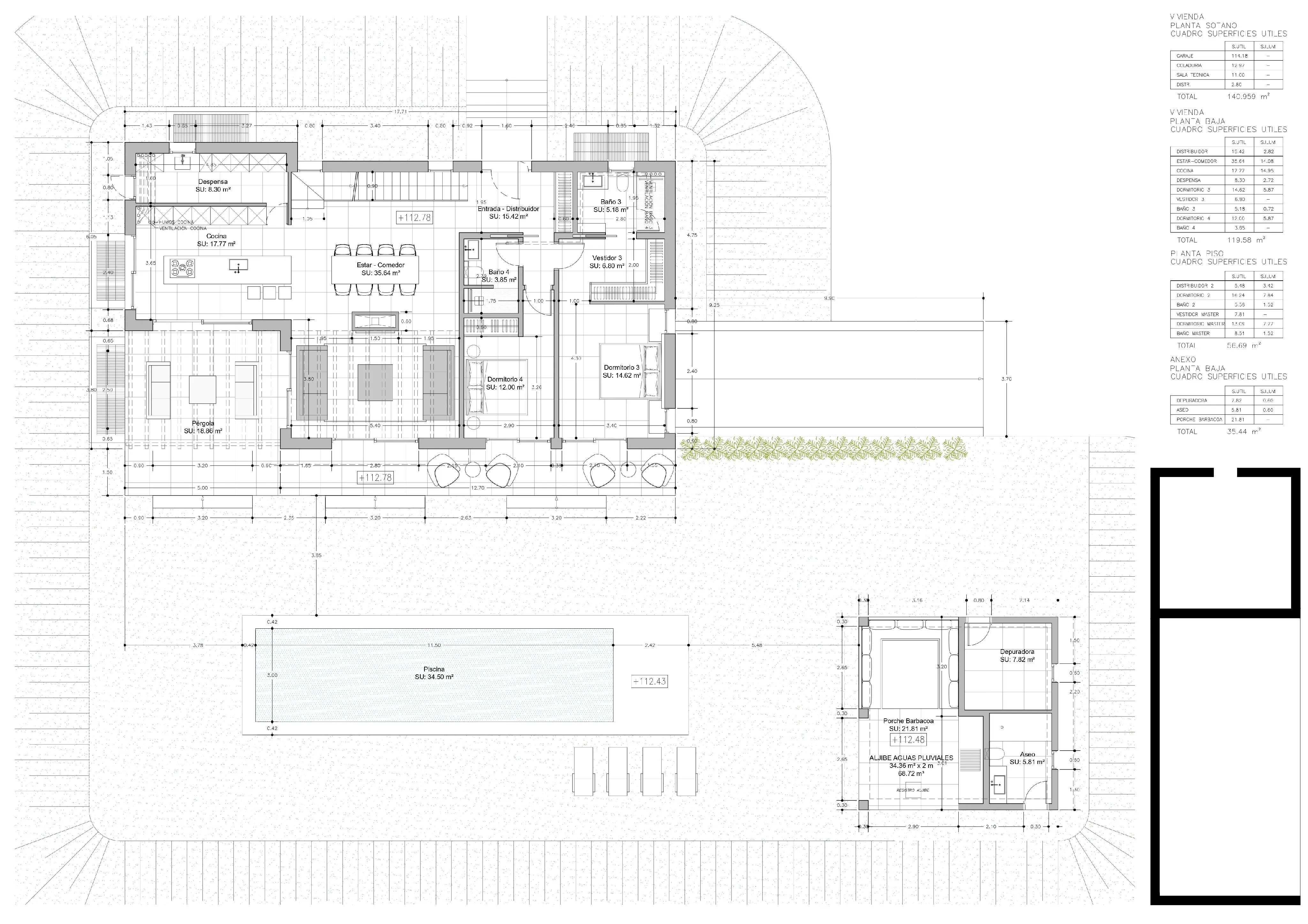
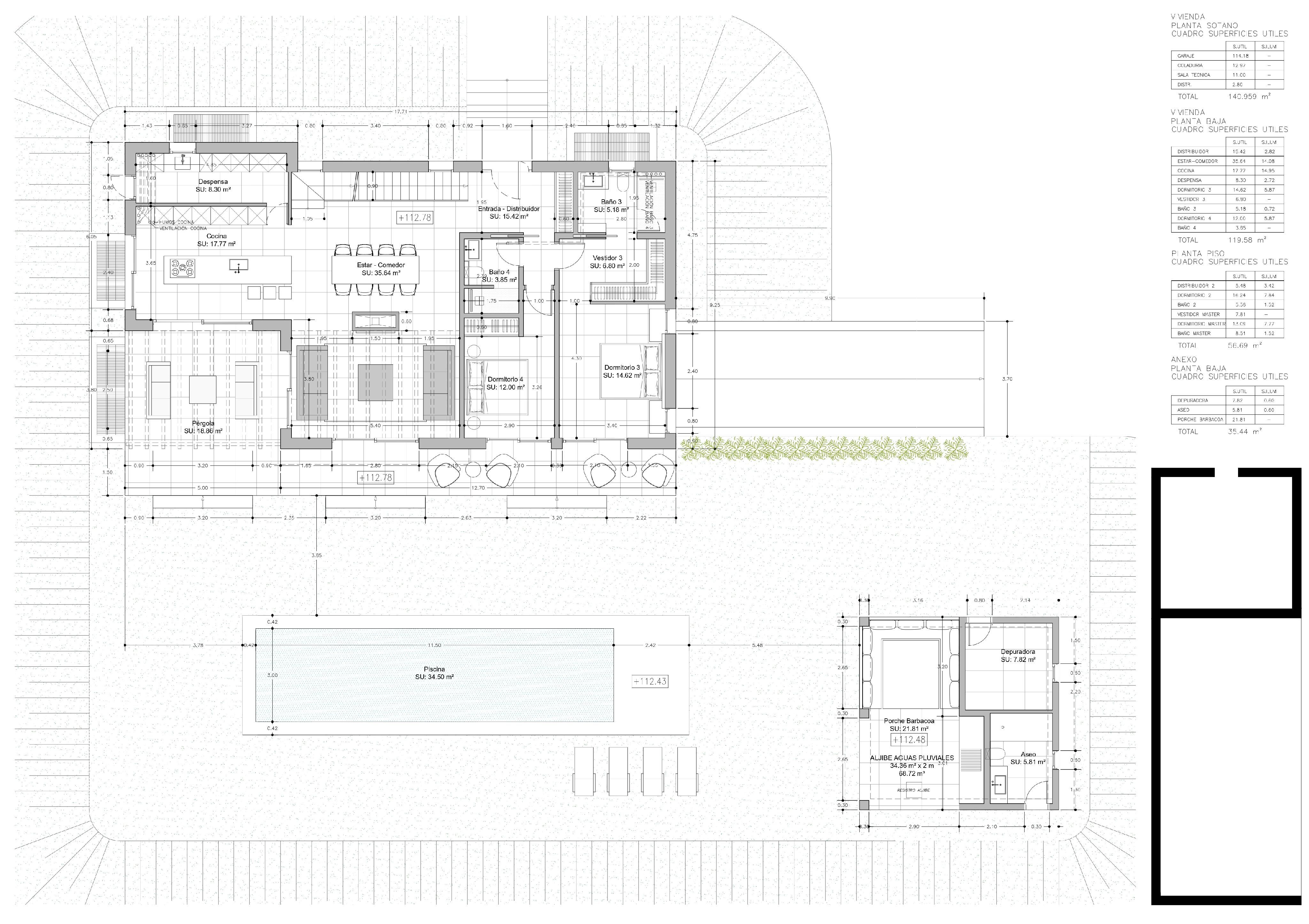
Планируемая площадь застройки составляет около 249 м² и занимает два этажа, а также цокольный этаж с подземной парковкой, подсобным помещением и технической зоной. Планировка предусматривает четыре спальни, четыре ванные комнаты и гостиную/столовую открытого плана с кухней и беседкой. Главная спальня будет иметь собственную террасу с беседкой.
Кроме того, планируется построить бассейн с прилегающей к нему пристройкой, которая будет включать в себя техническое помещение, туалет и крытую зону отдыха. На участке имеется электричество, а водоснабжение будет осуществляться из частной цистерны (Ajiebe).
Дизайн сочетает в себе традиционные элементы, такие как открытые деревянные балочные потолки и скатные черепичные крыши, с современным комфортом.
Важное примечание: окончательное разрешение на проектирование еще не получено. Вся информация, представленная здесь, не является обязательной и должна быть проверена квалифицированным архитектором. Мы не несем ответственности за точность, осуществимость и текущий статус проекта.
Engel & Völkers Санта-Мария
EV Mallorca Property S.L.
Регистрационный номер: GOIBE728083/2024
Свяжитесь с Вашим личным консультантом
Санта-Мария
Carrer Marquès de la Fontsanta 45a | Santa Maria | Испания
Регистрационный номер: GOIBE728083/2024
Moscari: Расположение и район этой недвижимости
Москари - деревня, расположенная в муниципалитете Сельва у подножия горного хребта Трамунтана, с населением около 400 человек. Благодаря своему расположению она имеет прекрасный вид на горы, а также с некоторых точек на залив Алькудия. Деревня выделяется своей тишиной и спокойствием, а также приходской церковью "Санта-Ана" и впечатляющими видами, открывающимися из традиционных домов. В деревне есть несколько небольших магазинов, которые обеспечивают ее жителей предметами первой необходимости. Москари расположен примерно в 35 минутах езды от центра Пальмы, а также от аэропорта и всего в 8 км от города Инка.
Информация об энергии
В процессе
Вас также могут заинтересовать эти объекты
Информация о комиссии
Доступность по согласованию
Engel & Völkers выступает исключительно в качестве посредника и в этом качестве не может предоставлять юридические консультации по строительным нормам и правилам или любым другим правовым вопросам, а также не может гарантировать состояние предлагаемых объектов недвижимости. Вся информация основана исключительно на данных, предоставленных Engel & Völkers владельцами, и поэтому не дается никаких гарантий относительно полноты, точности и своевременности этой информации. Предложение может содержать ошибки, изменения цен, упущения и/или снятие с продажи без предварительного уведомления. Рекомендуется привлечь специализированного юриста для проверки юридического и урбанистического статуса недвижимости и, при необходимости, независимого сюрвейера для проверки статуса недвижимости. Доступность будет согласована. Расходы по передаче прав, НДС, нотариальные и регистрационные сборы, связанные с покупкой, несет покупатель. Согласно форме продажи, брокерские расходы оплачивает продавец.
Связаться с консультантом
Свяжитесь с нами
Компания EV Mallorca Property S.L. обрабатывает ваши данные в соответствии с нашей Условия пользования и конфиденциальности. Мы собираем их для управления вашей учетной записью и, если вы согласны, для отправки вам коммерческих сообщений от нас и группы Engel & Völkers. Вы можете воспользоваться своими правами на доступ, исправление, удаление и отказ, в частности, в соответствии с нашей Условия пользования и конфиденциальности.