Войти
Пожалуйста, войдите в систему, чтобы сохранить этот объект в качестве избранного.
Создайте свои личные критерии поиска и узнавайте первыми о новых объектах!
Создайте поисковые оповещения Зарегистрируйтесь сейчас, создайте свои личные критерии поиска и Вы автоматически будете получать электронные письма с подробной информацией о новых объектах недвижимости, которые соответствуют Вашим критериям. Поиск может быть изменён или удалён в любое время.
Избранное Если Вы хотите добавить недвижимость в избранные в Вашем аккаунте, просто нажмите на ♡ в правом верхнем углу.
Привлекательный проект реконструкции в Коста д'эн Бланес
Дом, Купить | Испания, Mallorca, Юго-Запад, Costa d'en Blanes
1.850.000 EUR
Цена
4
Спальни
3
Ванные
221 ㎡
Общая площадь
1.440 ㎡
Площадь участка
E&V ID W-02RS0H
Запросить дополнительную информацию
Удобства и особенности этого дома
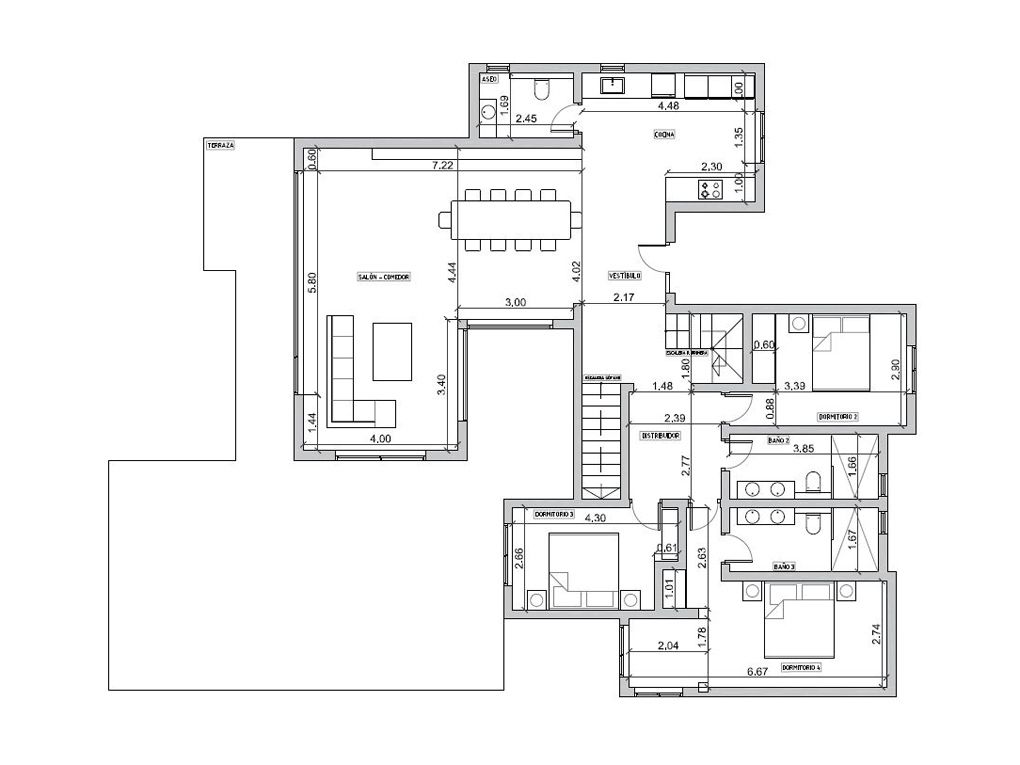
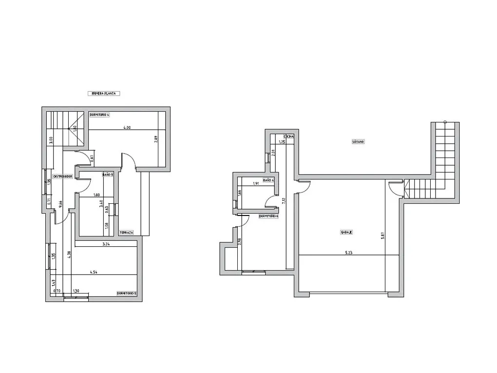
Тип: Дом • Регион: Юго-Запад • Год постройки: 1978 • Общая площадь: 221 ㎡ • Спальни: 4 • Ванные комнаты: 3 • Площадь участка: 1.440 ㎡ • Парковка: 2 • Террасa • Камин • Кондиционер • Бассейн • Санузел для гостей • Отопление: Полностью с кондиционером • Тип напольного покрытия: Кафель
В престижном и востребованном жилом районе Коста д'эн Бланес находится этот дом в средиземноморском стиле, который мы предлагаем вместе с проектом реконструкции и лицензией на строительство, которая, как ожидается, будет получена до конца года. Расположение очень привлекательно, так как всего в нескольких минутах ходьбы находится Пуэрто Порталс и торговый район Порталс, где вы найдете все необходимые вам услуги на каждый день, а также одну из самых престижных международных школ на острове. Вилла спроектирована с непревзойденным качеством, прекрасными зелеными видами, уединением и просторными открытыми площадками. Она расположена на двух этажах и в подвале. На первом этаже или уровне входа расположены главная спальня с ванной комнатой, две спальни с общей ванной комнатой, гостиная-столовая с выходом на большую террасу, гостевой туалет и кухня открытой планировки. На втором этаже находятся две спальни, одна из которых имеет выход на террасу, и обе делят ванную комнату. Гараж и другие многофункциональные помещения расположены в подвале. Эта вилла идеально подходит как для тех, кто хочет жить на острове постоянно, так и для тех, кто хочет использовать ее в качестве резиденции для отдыха, благодаря своим удобным характеристикам и стратегическому расположению.
Engel & Völkers Порталы
Engel Mallorca Invest S.L.
Регистрационный номер: GOIBE728083/2024
Costa d'en Blanes: Расположение и район этой недвижимости
Порталс расположен всего в 10 км к западу от столицы острова и всего в 16 км от международного аэропорта Пальмы, куда ежедневно прибывают рейсы из всех крупных европейских столиц. Этот район делится на Пуэрто-Порталс, эксклюзивную яхтенную марину, и деревню Порталс-Ноус с ее морским очарованием. Также недалеко от Порталс находится Коста д`ен Бланес. Пуэрто-Порталс был основан более 25 лет назад и вскоре стал местом притяжения местного общества, королевских особ и мировых знаменитостей. Сейчас он считается Сан-Тропе на острове, местом, где можно увидеть и развлечься. В марине имеется 700 причалов для самых эксклюзивных и сенсационных яхт класса люкс в Средиземноморье, которые пришвартованы рядом с аппетитным выбором лучших ресторанов, кафе, баров и эксклюзивных дизайнерских бутиков острова. Круглый год в Пуэрто-Порталс проходит календарь мероприятий, светских событий и лучших парусных регат, которые привлекают международных знаменитостей и членов испанской королевской семьи.
Информация об энергии
Год постройки: 1978
Вас также могут заинтересовать эти объекты
Информация о комиссии
Доступность по согласованию
Engel & Völkers рекомендует обратиться к квалифицированному специалисту для проверки юридической ситуации, связанной со строительством. Все материалы основаны на информации, которую Engel & Völkers считает достоверной, но поскольку ее предоставили третьи лица, Engel & Völkes не может утверждать, что она является точной или полной, и на нее не следует полагаться как на таковую. Данное предложение может содержать ошибки, упущения, а также может быть изменено или снято с продажи без предварительного уведомления. Доступность по согласованию. Налоги, нотариальные и регистрационные сборы оплачивает покупатель, комиссионные агентству недвижимости оплачивает продавец, как указано в договоре купли-продажи.
Связаться с консультантом
Свяжитесь с нами
Компания Engel Mallorca Invest S.L. обрабатывает ваши данные в соответствии с нашей Условия пользования и конфиденциальности. Мы собираем их для управления вашей учетной записью и, если вы согласны, для отправки вам коммерческих сообщений от нас и группы Engel & Völkers. Вы можете воспользоваться своими правами на доступ, исправление, удаление и отказ, в частности, в соответствии с нашей Условия пользования и конфиденциальности.