Es necesario registrarse
Por favor inicie sesión para añadir esta propiedad como favorita.
¡Cree una alerta de búsqueda personalizada y sea el primero en enterarse de nuevas propiedades!
Crear una alerta de búsqueda Regístrese ahora y cree su alerta de búsqueda y reciba automáticamente un correo electrónico con detalles de las últimas propiedades que coincidan con sus criterios de búsqueda. La búsqueda se puede modificar o eliminar en cualquier momento.
Favoritos Si desea guardar una propiedad en los favoritos de su cuenta, sólo tiene que hacer clic en el ♡ situado en la esquina superior derecha del exposé on-line.
Terreno con proyecto en urbanización idílica
Solares, Comprar | España, Mallorca, Central, S'Aranjassa
495.000 EUR
Precio
7.336 ㎡
Superficie de parcela
E&V ID W-02S1RH
Solicitar más información
Servicios y características especiales de este solar
Tipo: Solar • Región: Central • Superfície de parcela: 7.336 ㎡
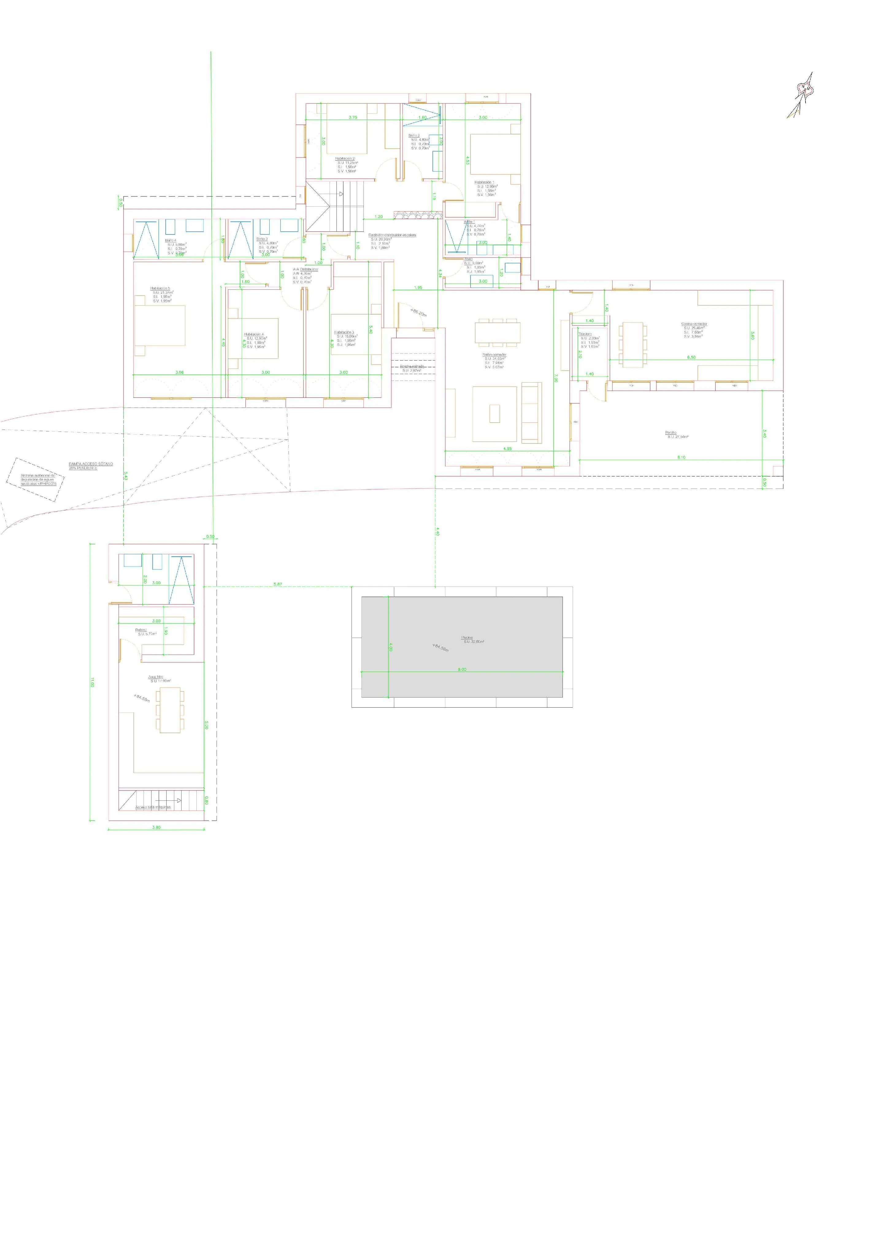
Este amplio terreno, situado en una urbanización idílica con casas unifamiliares bien cuidadas, se encuentra a solo 15 minutos de Palma y a 8 minutos de Llucmajor. Ya cuenta con una licencia de construcción y un proyecto básico aprobado. El proyecto de construcción contempla una casa unifamiliar de una planta con sótano, garaje subterráneo, cinco dormitorios y cuatro baños. Además, se integrará un amplio espacio para una cocina luminosa con zona de comedor y una sala de estar con grandes ventanales y acceso directo a la terraza exterior. El sótano previsto incluirá un espacioso garaje con dos plazas de aparcamiento y una sala adicional que podría destinarse, por ejemplo, a gimnasio. En el exterior de la casa habrá una terraza con área de barbacoa, una espectacular piscina de 35 m² y varias zonas de relajación y descanso. El precio de venta incluye el terreno y el proyecto, pero no la propiedad terminada.
Engel & Völkers Santa María
EV Mallorca Property S.L.
Número de registro: GOIBE728083/2024
Contacte a su asesor personal
Santa María
Carrer Marquès de la Fontsanta 45a | Santa Maria | España
Número de registro: GOIBE728083/2024
S'Aranjassa: Ubicación y alrededores de este inmueble
S’Aranjassa es una localidad que pertenece a Palma y cuenta con una población inferior a 1.000 habitantes, lo que explica por sí mismo su carácter apacible y tranquilo. Es un lugar perfecto para que una familia forme su hogar. La bahía de Palma es el elemento más influyente sobre la ciudad, por las múltiples actividades turísticas y deportivas que se desarrollan en ella (acuáticas y de vela). Existen varios clubs para la práctica de estos deportes, entre los que destacan el Real Club Náutico de Palma, la Escuela de vela Calanova y el Club Náutico de Portitxol. Dispone de un fácil acceso al aeropuerto y a la playa, así como de la ciudad de Palma, que se encuentra a unos 15 minutos del centro de Palma, y a unos 10 minutos del aeropuerto y las playas.
Información energética
En proceso
Estos inmuebles también le podrían interesar
Condiciones generales
Disponibilidad a acordar
Engel & Völkers interviene únicamente como intermediario y, por lo tanto, no puede ofrecer asesoramiento legal ni urbanístico, ni dar garantía alguna sobre el estado de los inmuebles ofrecidos. Todos los datos se basan exclusivamente en información proporcionada a Engel & Völkers por los propietarios y por lo tanto Engel & Völkers no asume ninguna responsabilidad por la integridad, exactitud y actualidad de estos datos. La oferta se sujeta a errores, cambios de precio, omisión y/o retirada del mercado sin aviso previo. Se recomienda contratar un abogado especializado para verificar el estado legal y urbanístico de la propiedad y, en caso necesario, un perito independiente que compruebe el estado de la propiedad. Disponibilidad a acordar. Los gastos de transmisión patrimonial, IVA, notario y registro corren a cargo del comprador. Según la Hoja de encargo, los gastos de intermediación corren a cargo del vendedor.
Contactar Asesor
Contáctenos
EV Mallorca Property S.L. trata sus datos según nuestras v. Los recogemos para administrar su cuenta, y si acepta, enviarle comunicaciones comerciales nuestras y del grupo Engel & Völkers. Puede ejercer sus derechos de acceso, rectificación, supresión y oposición, entre otros, según nuestras Condiciones de Uso y Privacidad.