Casa de pueblo grande renovada con piscina, jardín y terraza

Casa, Comprar | España, Mallorca, Central, Binissalem

Property Price

1.750.000 EUR

Precio

Property Bedrooms

5

Dormitorios

Property Bathrooms

3

Baños

Property Total surface

556 ㎡

Superficie total

Property Total surface

387 ㎡

Superficie de parcela

E&V ID W-030X5T

Solicitar más información

Servicios y características especiales de esta casa

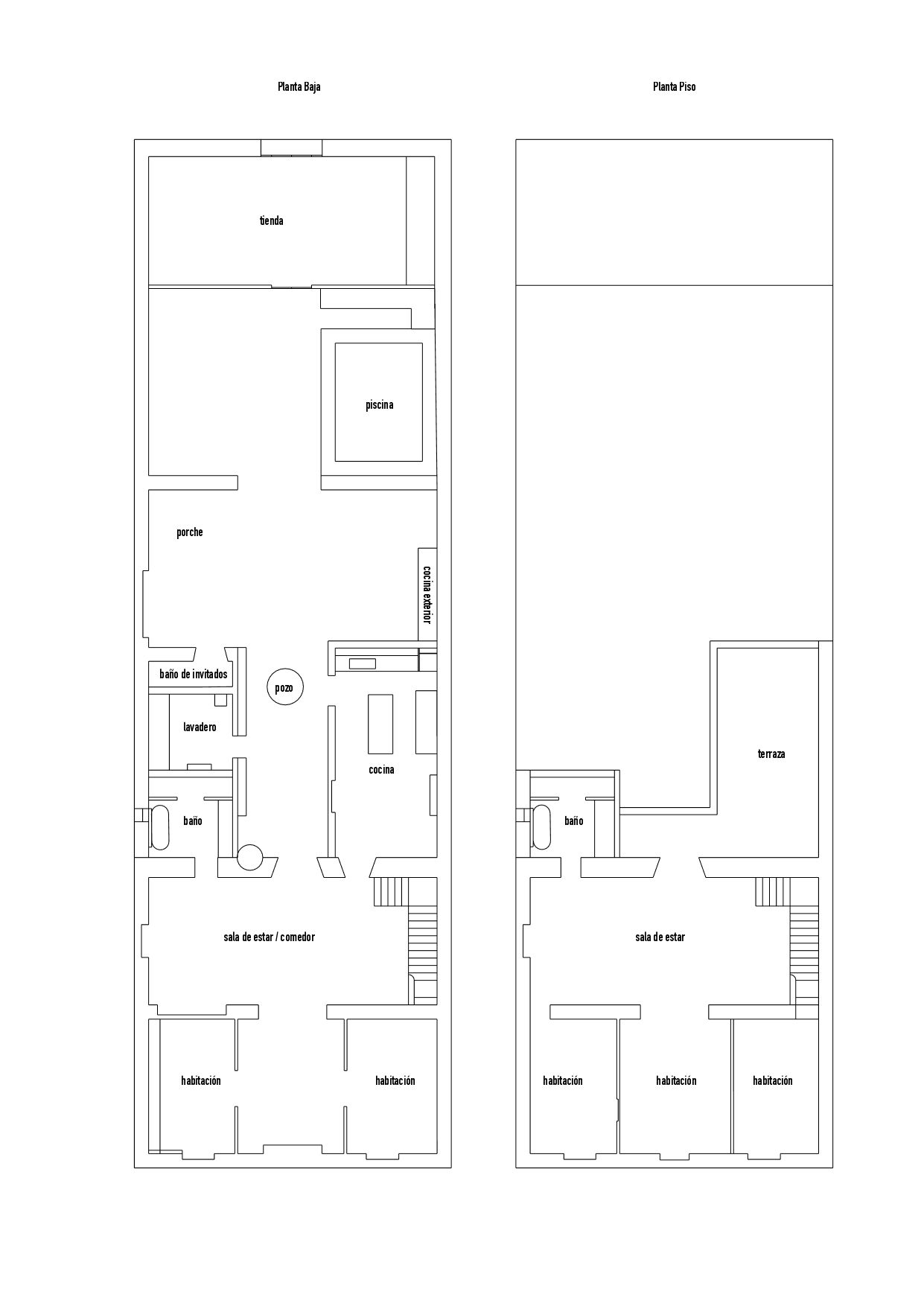
Tipo: Casa • Región: Central • Año de construcción: 1865 • Última restauración: 2019 • Superficie total: 556 ㎡ • Total de habitaciones: 6 • Dormitorios: 5 • Baños: 3 • Superfície de parcela: 387 ㎡ • Balcones: 1 • Parkings: 1 • Terraza • Cocina • Chimenea • Piscina • Aseo de cortesia • Tipo de calefacción: Parcialmente climatizado • Tipo de calefacción: Ecológica, Solar • Revestimiento del suelo: Baldosas, Piedra

Esta elegante casa de pueblo con espacio adicional para hobbies se encuentra en una de las calles más bonitas de Binissalem, un animado pueblo vinícola situado al pie de la sierra de Tramuntana, a solo 25 minutos de Palma. Su ubicación privilegiada ofrece tranquilidad y, al mismo tiempo, cercanía a la estación de tren, lo que la hace ideal para residencia habitual o para desplazamientos diarios.
La casa, construida en 1865 y renovada con gran gusto en 2019, combina el encanto histórico con el confort moderno. Cuenta con cinco dormitorios distribuidos en dos plantas, con suelos, ventanas y carpintería originales que reflejan el auténtico estilo mallorquín. Dispone de dos grandes baños, uno con ducha tipo lluvia, y un aseo adicional para invitados. La cocina, con isla central, conecta con el comedor y los espacios exteriores, creando un ambiente perfecto para recibir invitados.
En la planta superior se encuentra un salón con acceso a una terraza privada con vistas a la montaña; en la planta baja, un acogedor salón-comedor con acceso directo al patio ajardinado. Una gran buhardilla ofrece espacio de almacenamiento adicional o potencial de ampliación.
Las dependencias anexas al final del jardín están climatizadas y cuentan con suelos de cemento pulido y grandes ventanales de vidrio con estructura de acero, lo que las hace ideales como showroom, oficina o estudio.
El exterior es un oasis mediterráneo con limoneros, buganvillas, aloe y un rosal Banksiano. El patio, pavimentado con piedra de Binissalem, alberga una piscina de agua salada con sistema de contracorriente y una cocina exterior cubierta, perfecta para largas veladas de verano.
En cuanto a sostenibilidad, la propiedad cuenta con 17 paneles solares con batería de 7 kW, cisterna para recogida de agua de lluvia, techos recientemente aislados y sistemas de calefacción eficientes (estufas de pellets, chimenea con sistema de guillotina, radiadores eléctricos toalleros en los baños).
Con tres accesos independientes y entradas desde tres lados, esta propiedad ofrece máxima flexibilidad y privacidad. Una oportunidad única para combinar el encanto mallorquín con un concepto moderno de vida y negocio.

Engel & Völkers Santa María

Binissalem: Ubicación y alrededores de este inmueble

El municipio de Binissalem está situado en el centro de la isla, cuenta con más de 8.800 habitantes y destaca por su arquitectura en piedra; la conocida piedra de Binissalem, y por su producción de vino de alta calidad con denominación de origen en sus caldos, así como por su hermoso paisaje. En Binissalem se encuentra la famosa bodega José Ferrer, con una gran variedad de vinos y con múltiples experiencias enogastronómicas. Cuenta con una amplia oferta gastronómica, recomendamos el Restaurante Terra di Vino que es uno de los favoritos entre los lugareños y los turistas, sirviendo comida de primera calidad. Sus valles llanos ofrecen rutas relativamente fáciles para el senderismo y el ciclismo, y las montañas de los alrededores ofrecen unas vistas impresionantes. Muchos también disfrutan de visitar los viñedos locales para realizar visitas y catas. Cuenta con dos eventos principales que tienen lugar cada año, la fiesta del vino "Festa des Vermar", que se celebra en septiembre, y una demostración anual de artesanos canteros, que suele tener lugar en mayo. Está a unos 25 minutos del aeropuerto, así como a 30 minutos del centro de Palma y sus playas, por lo que es ideal para los amantes de la naturaleza que no quieren alejarse demasiado de la vida en la capital.

Información energética

Año de construcción: 1865 • Valor de consumo energético: 143.0 kWh/(m2*a) • Emisiones CO2: 32.0 kg/m2 • Escala de Emisiones de CO2: D • Tipo de calefacción: Ecológica • Tipo de calefacción: Solar • Clase de eficiencia energética: D

Estos inmuebles también le podrían interesar

Condiciones generales

Disponibilidad a acordar

Engel & Völkers interviene únicamente como intermediario y, por lo tanto, no puede ofrecer asesoramiento legal ni urbanístico, ni dar garantía alguna sobre el estado de los inmuebles ofrecidos. Todos los datos se basan exclusivamente en información proporcionada a Engel & Völkers por los propietarios y por lo tanto Engel & Völkers no asume ninguna responsabilidad por la integridad, exactitud y actualidad de estos datos. La oferta se sujeta a errores, cambios de precio, omisión y/o retirada del mercado sin aviso previo. Se recomienda contratar un abogado especializado para verificar el estado legal y urbanístico de la propiedad y, en caso necesario, un perito independiente que compruebe el estado de la propiedad. Disponibilidad a acordar. Los gastos de transmisión patrimonial, IVA, notario y registro corren a cargo del comprador. Según la Hoja de encargo, los gastos de intermediación corren a cargo del vendedor.

Image contact agent

Contactar Asesor

Suscríbase a nuestra Newsletter

Suscríbase a nuestro newsletter y reciba automáticamente la información más reciente.

No se pudo cargar la verificación. Por favor, recargue la página e inténtelo de nuevo.

Balearev GmbH trata sus datos según nuestras Condiciones de Uso y Privacidad. Los recogemos para administrar su cuenta, y si acepta, enviarle comunicaciones comerciales nuestras y del grupo Engel & Völkers. Puede ejercer sus derechos de acceso, rectificación, supresión y oposición, entre otros, según nuestras Condiciones de Uso y Privacidad.

Síguenos en las redes sociales

Esta web utiliza cookies para analítica digital, mejorar su experiencia de usuario y personalización de publicidad. Puede consultar nuestra política de cookies