Anmeldung erforderlich
Bitte melden Sie sich an, um diese Immobilie als Ihr Favorit zu speichern.
Jetzt Suchauftrag einrichten und maßgeschneiderte Angebote erhalten!
Suchauftrag erstellen Registrieren Sie sich jetzt und erstellen Sie Ihren persönlichen Suchauftrag. Ab sofort erhalten Sie die neuesten Immobilien zu Ihren Suchkriterien automatisch per E-Mail. Ihre erstellten Suchaufträge können Sie jederzeit anpassen oder löschen.
Favoriten Ihre Favoriten können Sie zudem im Exposé mit dem ♡ in der oberen rechten Ecke markieren und sie so in Ihrem Account speichern.
Bauprojekt für Landhaus bei Pollensa
Finca, Kaufen | Spanien, Mallorca, Nord, Pollensa
4.000.000 EUR
Preis
4
Schlafzimmer
4
Badezimmer
564 ㎡
Gesamtfläche
2,89 ㏊
Grundstück
E&V ID W-02C0J5
Weitere Informationen anfordern
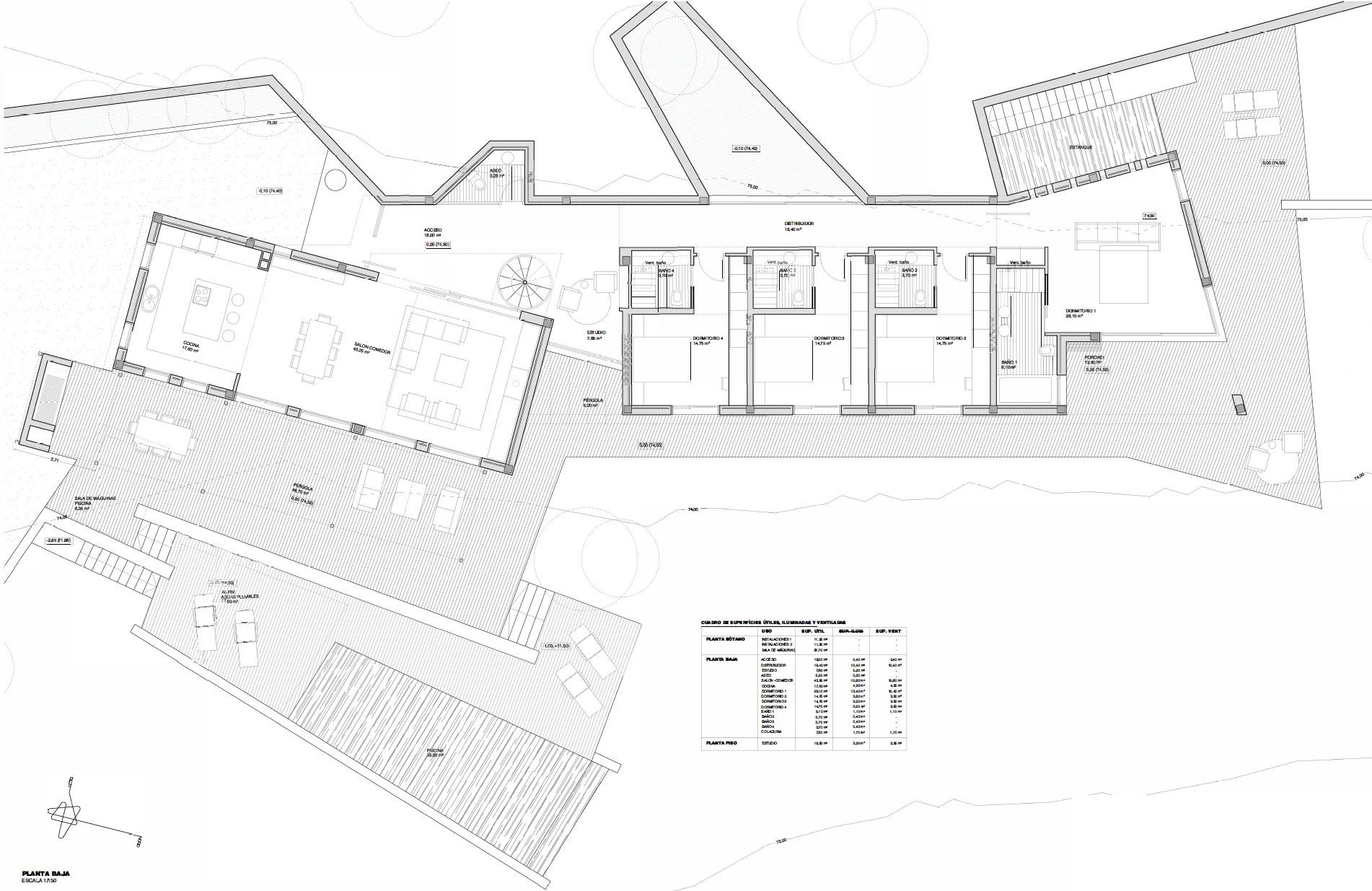
Ausstattung und besonderheiten Dieser Finca
Typ: Finca • Region: Nord • Gesamtfläche: 564 ㎡ • Schlafzimmer: 4 • Badezimmer: 4 • Grundstück: 2,89 ㏊ • Stellplätze: 4 • Terrasse • Pool • Gäste WC • Heizungsart: Zentrale Klimaanlage
Das Projekt sieht ein elegantes, sehr interessantes Landhaus vor, auf nur einer Ebene gebaut, eingebettet in das Tal Vall de Colonya. Bevorzugte Lage aufgrund seiner malerischen Landschaft, Blick auf die Berge und der Nähe zu Pollensa – der Ort kann bequem per Fahrrad oder auch zu Fuss erreicht werden.
Das Haus wird von hoher Bauqualität sein, gepflegte Gartenanlage mit Infinity-Pool, diverse Terrassen und Carport. Es sind vier Schlafzimmer-Suiten geplant, die einen schönen Ausblick bieten sowie ein offener Wohn-/Essbereich mit Küche. Mit dem Projekt wurde bereits begonnen. Im Moment können noch individuelle Wünsche zur Fertigstellung berücksichtigt werden. Hier bietet sich eine der sehr seltenen Gelegenheiten, die Wunschimmobilie mitzugestalten und Besitzer eines luxuriösen Anwesens in ländlicher Umgebung nahe Pollensa zu werden, also in einer der landschaftlich schönsten Zonen von Mallorca.
Mehr zu diesem Neubauprojekt
Diese Immobilie ist Teil eines Neubauprojekts. Erfahren Sie hier mehr über dieses Bauvorhaben.
Engel & Völkers Puerto Alcudia
EV North Mallorca Real Estate S.L.
Registrierungsnummer: ROOAIB GOIBE727791/2024
Kontaktieren sie ihren persönlichen berater
Puerto Alcudia
Carrer dels Pins 23 | Puerto Alcudia | Spanien
Registrierungsnummer: ROOAIB GOIBE727791/2024
Pollensa: Lage und umfeld dieser immobilie
Mit einer Bevölkerung von mehr als 16.000 Einwohnern, befindet sich Pollensa im Norden der Insel. Die Stadt ist 7 Kilometer von der Küste, 58 Kilometer von der Hauptstadt und etwa 40 Minuten Autofahrt vom Flughafen in Palma entfernt. Zur Gemeinde von Pollensa gehören auch die Küstenorte Puerto Pollensa und Cala San Vicente. Die Altstadt von Pollensa ist geprägt von Historie und Tradition. In den engen Gassen und auf dem Kirchplatz bietet sich ein grosses Angebot an hübschen Strassencafés, Restaurants und Bars mit einem abwechslungsreichen gastronomischen Angebot. In den letzten Jahren sind auch einige schöne Boutique-Hotels entstanden, die sich perfekt in das Stadtbild fügen. Jeden Sonntag findet der bekannte Wochenmarkt statt, auf dem neben frischem Obst und Gemüse auch handwerkliche Produkte und Blumen angeboten werden. In den frühen 1920er wurde Pollensa zu einem beliebten Reiseziel für berühmte Maler, Schriftsteller und Musiker. Heute hat Pollensa dank seiner zahlreichen Kunstgalerien und kulturellen Veranstaltungen, wie dem Internationalen Musikfestival in der Kultur- und Kunstwelt einen guten Ruf. Weitere jährliche Veranstaltungen sind das im Januar stattfindende Fest Sant Antoi, die Prozessionen in der Osterwoche und “La Patrona Mare de Déu dels Ángels” vom 26. Juli bis 2. August zu Ehren der Schutzheiligen. Viel Anklang findet auch die Weinmesse im April. Auf dem Berg Puig de María befindet sich eine kleine Klosteranlage, in der auch Übernachtungen gebucht werden können. Von hier reicht der Ausblick über die Dächer von Pollensa bis zum Meer und die Berge der Tramuntana. Weitere Sehenswürdigkeiten der Stadt sind die römische Brücke am Ortsrand und die Kalvarientreppe mit 365 Stufen.
Energieinformationen
In Bearbeitung
Diese immobilien könnten sie ebenfalls interessieren
Courtagepassus
Lieferung nach Vereinbarung
Grundsätzlich empfiehlt Engel & Völkers die baurechtliche Situation durch einen Fachanwalt prüfen zu lassen. Alle Angaben basieren ausschließlich auf Informationen, die Engel & Völkers von Auftraggebern zur Verfügung gestellt wurden. Engel & Völkers übernimmt keine Gewähr für die Vollständigkeit, Richtigkeit und Aktualität dieser Angaben. Irrtum und Zwischenverkauf vorbehalten. Lieferung nach Vereinbarung. Die beim Kauf anfallenden Steuern, die Notar- und die Grundbuchkosten sind vom Käufer zu tragen. Die Maklercourtage geht laut Verkaufsauftrag zu Lasten des Verkäufers.
Kontaktieren Sie uns
EV North Mallorca Real Estate S.L. verarbeitet Ihre Daten gemäß unseren Nutzungs- und Datenschutzbedingungen. Wir erfassen diese für die Betreuung Ihres Kontos, und sofern Sie einverstanden sind, für die Zusendung kommerzieller Mitteilungen von uns und der Engel & Völkers-Gruppe. Sie können Ihre Rechte bezüglich Einsicht, Berichtigung, Löschung und Widerspruch u.a. gemäß unserer Nutzungs- und Datenschutzbedingungen ausüben.