Tilmelding kræves
Log ind for at gemme denne ejendom som din favorit.
Opret en søgeopgave nu og modtag skræddersyede tilbud!
Opret søgeopgave Registrer dig nu og opret din personlige søgeopgave. Fra nu af modtager du automatisk de nyeste ejendomme, der matcher dine søgekriterier, via e-mail. Du kan til enhver tid ændre eller slette dine oprettede søgeopgaver.
Favoritter Du kan også markere dine favoritter i eksponeringen med ♡ i øverste højre hjørne og gemme dem på din konto.
Nybygget rækkehus i Alaró
Hus, Køb | Spanien, Mallorca, Central, Alaró
1.050.000 EUR
Pris
3
Soveværelse
3
Badeværelse
163 ㎡
Boligareal
163 ㎡
Samlet areal
162 ㎡
Grundstykke
E&V ID W-02MFQC
Anmod om yderligere oplysninger
Udstyr og særlige kendetegn ved dette hus
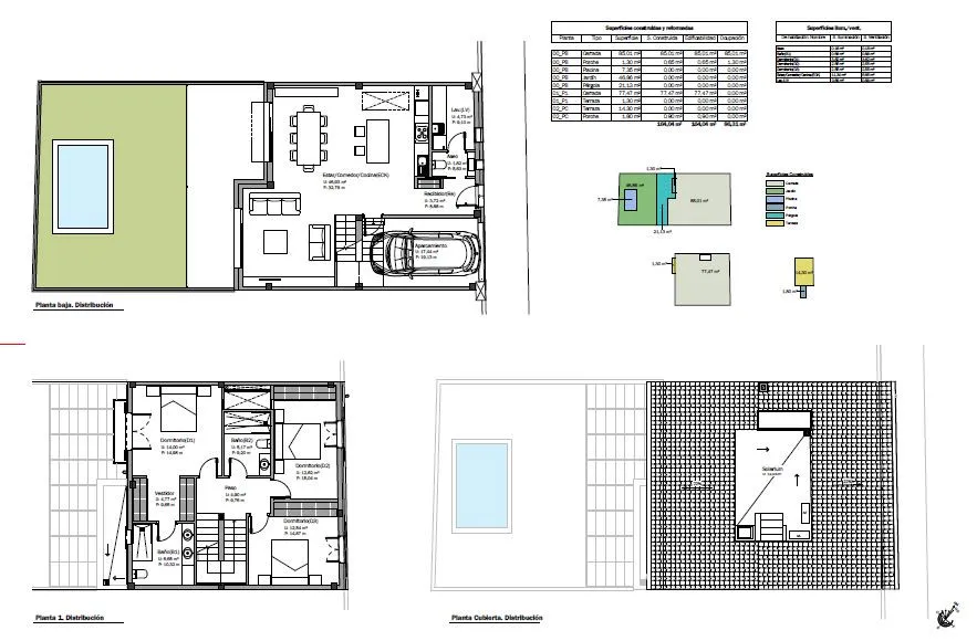
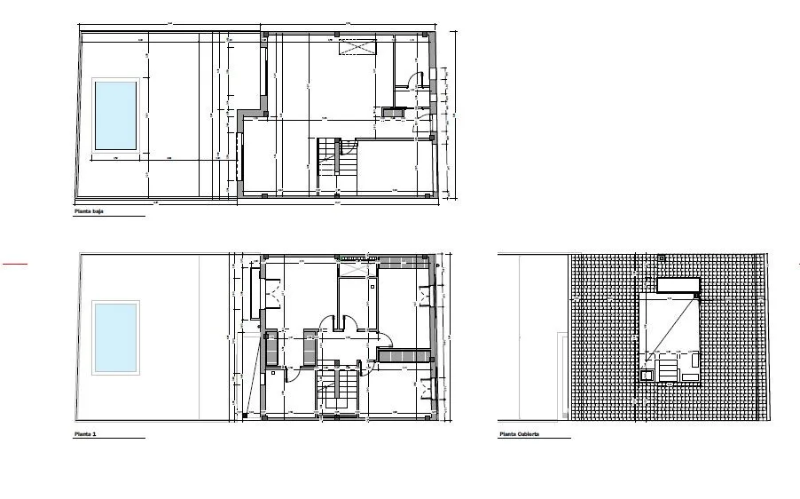
Type: Hus • Region: Central • Byggeår: 2024 • Samlet areal: 163 ㎡ • Værelser: 4 • Soveværelse: 3 • Badeværelse: 3 • Boligareal: 163 ㎡ • Grundstykke: 162 ㎡ • Altaner: 1 • Parkeringspladser: 1 • Terrasse • Indbygget køkken • Svømmebassin • Gæstetoilet • Varmeform: Central klimaanlæg, Decentral klimaanlæg • Varmeform: Varmepumpe, Solvarme • Gulvbelægning: Fliser, Parket
Smukt enfamilies rækkehus, der deler partivægge i middelhavsstil i nybyggeri med de bedste kvaliteter, med solpaneler, der garanterer dets energiklassificering A. Derudover er der store energibesparelser og er i tråd med de nye bæredygtige og selvforsynende levealternativer. Huset er udstyret med varm og kold aerotermisk opvarmning med varmepumpe.
Rækkehuset er fordelt på to etager på sin egen grund med en generøs have på 45 meter og en privat pool på 8 m2 ca. med en nøje undersøgt farve, der harmonerer miljøet i overensstemmelse med de smukke omgivelser.
På første sal tilbyder dette vidunderlige hus en rummelig stue-spisestue forbundet med solarium og terrasse, et lyst køkken fuldt udstyret med avancerede apparater, et vaskerum med toilet og garage.
På øverste etage er der tre soveværelser med indbyggede skabe og parketgulve, to badeværelser, et af dem en suite med Porcelanosa gruppe finish.
Yderligere funktioner: vandforsyning, avancerede apparater, solpaneler, klimaanlæg.
Engel & Völkers Santa María
Impressum
Registreringsnummer: GOIBE728083/2024
Alaró: Beliggenhed og omgivelser for denne ejendom
Den maleriske landsby Alaró ligger i en rolig dal mellem to kendte bjerge i den sydlige del af Tramuntana-bjergkæden. Den ligger midt på øen Mallorca og har i øjeblikket mere end 5.700 indbyggere. Den ligger ca. 20 minutter fra Palmas centrum samt fra de nærmeste strande og lufthavnen. Der er mange restauranter og vores smukke Engel & Völkers-kontor på byens torv. Den skiller sig ud med sin gamle arkitektur og smukke brostensbelagte gader i den ældste del af landsbyen samt den omkringliggende natur. Alaró er hjemsted for et ugentligt marked hver lørdag, hvor man kan finde lokale friske produkter og tøj. Desuden giver indbyggerne af forskellige nationaliteter byen en stor kulturel mangfoldighed. En af de mest berømte seværdigheder er Castell d'Alaró, som ligger på toppen af bjerget i 822 meters højde og er opført som et sted af kulturel interesse. Slottet har en fantastisk udsigt over det mallorcinske landskab og helt ud til Palmas bugt, og det ligger ca. to timers gang fra landsbyens centrum. Det er en populær landsby for cyklister og vandrere, da den har nogle af de bedste ruter på øen. Den vigtigste industri for landsbyen var skoindustrien, som engang talte 30 fabrikker, og som i dag stadig omfatter Tony Moras værksted, der er verdensberømt for sine håndlavede cowboystøvler.
Energioplysninger
Byggeår: 2024 • energiforbrugskoefficient: 0.0 kWh/(m2*a) • CO2-emission: 0.0 kg/m2 • CO2-emissionsklasse: A • Varmeform: Varmepumpe • Varmeform: Solvarme • Energieffektivitetsklasse: A
Disse ejendomme kunne også være interessante for dig
Kommissionens detaljer
Levering efter aftale
Engel & Völkers fungerer udelukkende som mellemmand og kan i denne egenskab ikke yde juridisk rådgivning om bygningsreglementer eller andre juridiske forhold og kan heller ikke garantere for de udbudte ejendommes tilstand. Alle oplysninger er udelukkende baseret på data leveret af ejerne til Engel & Völkers, og der gives derfor ingen garanti for fuldstændigheden, nøjagtigheden og aktualiteten af disse oplysninger. Der tages forbehold for fejl, prisændringer, udeladelser og/eller tilbagetrækning fra markedet uden forudgående varsel. Det anbefales at engagere en specialiseret advokat til at verificere ejendommens juridiske og urbanistiske status og om nødvendigt en uafhængig landmåler til at kontrollere ejendommens status. Tilgængelighed skal aftales. Overdragelsesgebyrer, moms, notar- og registreringsgebyrer i forbindelse med købet skal afholdes af køberen. I henhold til salgsformularen skal mægleromkostningerne betales af sælgeren.
Kontakt udbyder
Kontakt os
EV Mallorca Property S.L. behandler dine data i overensstemmelse med vores brugsbetingelser og Betingelser for databeskyttelse. Vi indsamler disse data til administration af din konto og, hvis du giver dit samtykke, til at sende dig kommercielle meddelelser fra os og Engel & Völkers-gruppen. Du kan udøve dine rettigheder til indsigt, berigtigelse, sletning og indsigelse i henhold til vores brugsbetingelser og Betingelser for databeskyttelse.