Tilmelding kræves
Log ind for at gemme denne ejendom som din favorit.
Opret en søgeopgave nu og modtag skræddersyede tilbud!
Opret søgeopgave Registrer dig nu og opret din personlige søgeopgave. Fra nu af modtager du automatisk de nyeste ejendomme, der matcher dine søgekriterier, via e-mail. Du kan til enhver tid ændre eller slette dine oprettede søgeopgaver.
Favoritter Du kan også markere dine favoritter i eksponeringen med ♡ i øverste højre hjørne og gemme dem på din konto.
Moderne nybygget villa med delvis havudsigt og privat pool
Hus, Køb | Spanien, Mallorca, Palma, San Agustin
2.850.000 EUR
Pris
4
Soveværelse
4
Badeværelse
206 ㎡
Boligareal
347 ㎡
Samlet areal
E&V ID W-02XNH0
Anmod om yderligere oplysninger
Virtuel rundvisning gennem denne ejendom
Udstyr og særlige kendetegn ved dette hus
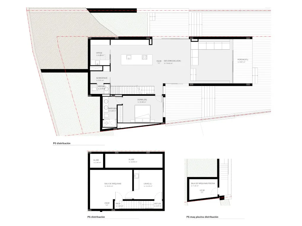
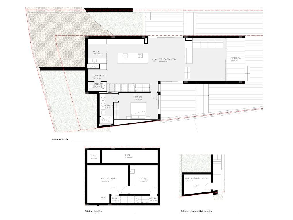
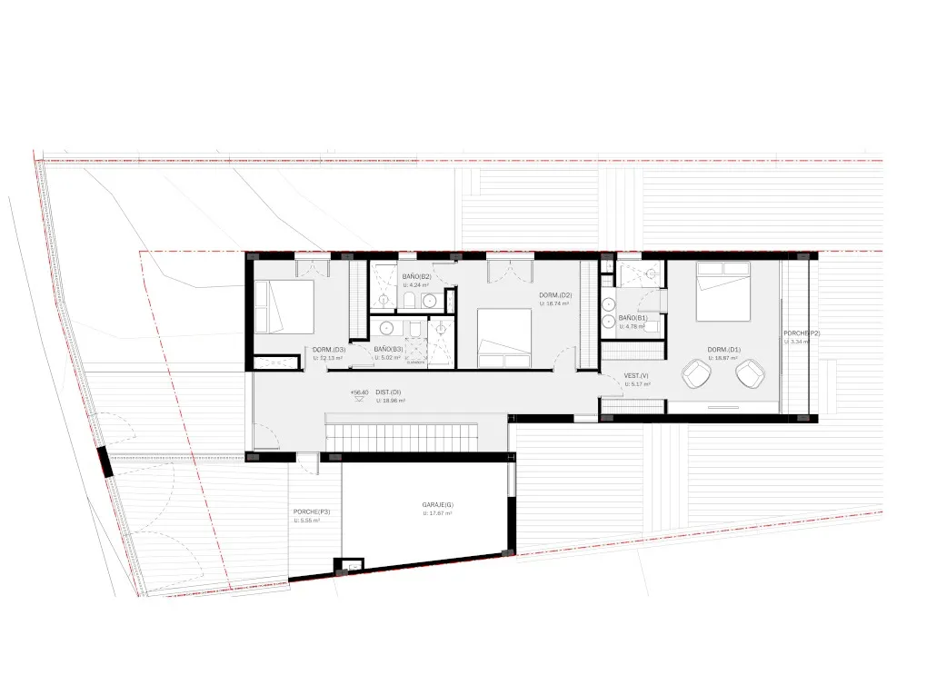
Type: Hus • Region: Palma • Byggeår: 2024 • Seneste restaurering: • Samlet areal: 347 ㎡ • Værelser: 5 • Soveværelse: 4 • Badeværelse: 4 • Boligareal: 206 ㎡ • Parkeringspladser: 1 • Terrasse • Indbygget køkken • Aircondition • Møbleret • Barrierefri adgang • Svømmebassin • Gæstetoilet • Seniororienteret • Varmeform: Gulvvarme, Central klimaanlæg, Fuldt klimatiseret • Varmeform: Varmepumpe • Gulvbelægning: Marmor, Gulvbrædder
Det nye Urban Jungle-projekt ligger i et roligt område i den lille kystby San Agustín, kun få minutters kørsel fra Palmas centrum, og vil snart være klar. De fem villaer i projektet har private pools og er sydvestvendte. Denne villa med 4 soveværelser og 4 badeværelser har ikke kun en smuk udsigt over de grønne områder, men også delvis havudsigt. Midtpunktet i den moderne ejendom er det rummelige opholds- og spiseområde med et integreret køkken med kogeø og morgenmadsbar, som giver adgang til den store private poolterrasse. Derudover er der på stueniveau et lille sekundært beskidt køkken, et gæstetoilet og et af de 4 soveværelser med dobbeltsenge med eget badeværelse. De tre andre rummelige soveværelser med dobbeltsenge ligger på øverste etage og har også alle indbyggede garderobeskabe og eget badeværelse. Kælderen indeholder et fuldt udstyret vaskerum, et opbevaringsrum og husets tekniske faciliteter. Det moderne design og den høje kvalitet - herunder LEICHT-køkkener med Miele- og Siemens-apparater, naturstensgulve og egetræsparket, døre fra gulv til loft, aircondition, gulvvarme med varmepumpe, KNX-hjemmeautomatisering og en privat garage - sikrer en komfortabel og eksklusiv livsstil. Inden for gåafstand ligger den lille Cala Nova marina, som tilbyder en bred vifte af vandsport, samt flere sandbugter, butikker og restauranter. Derudover er der flere internationale skoler i nærheden, hvilket gør denne ejendom til det perfekte hjem for familier, der ønsker at bo året rundt på Mallorca.
Mere om dette nybyggeri
Denne ejendom er en del af et nyt byggeprojekt. Læs mere om dette byggeprojekt her.
Engel & Völkers Portaler
Engel Mallorca Invest S.L.
Registreringsnummer: GOIBE728083/2024
San Agustin: Beliggenhed og omgivelser for denne ejendom
San Agustin er et dejligt strandområde kun få minutters kørsel fra byens centrum, tæt på gode restauranter, supermarkeder og alle slags barer. I løbet af de sidste år er det blevet et meget populært og prestigefyldt område på grund af dets nærhed til Palmas gamle bydel og samtidig på grund af den ro, der tilbyder dette kvarter. Det betragtes som et af de bedste områder at leje i sydvest. Her finder du strandklubben Zhero, hvor du kan tilbringe dagen ved poolen med en utrolig udsigt, restauranten Port Calanova og dens havn og mange dejlige parker, hvor du kan tilbringe eftermiddagen på legepladsen med dine børn eller din hund. Dette kvarter er der, hvor luksus og god smag mødes. San Agustin anbefales til familier eller par, da det er et aktivt og levende område hele året rundt, populært til både ferieboliger og permanent ophold. Ejendommene i San Agustin har fremragende penthouselejligheder og lejligheder i anden sølinje. De fleste af bebyggelserne her har fælles haver og pools foruden en fantastisk havudsigt.
Energioplysninger
Byggeår: 2024 • energiforbrugskoefficient: 24.17 kWh/(m2*a) • CO2-emission: 7.59 kg/m2 • CO2-emissionsklasse: B • Varmeform: Varmepumpe • Energieffektivitetsklasse: A
Disse ejendomme kunne også være interessante for dig
Kommissionens detaljer
Levering efter aftale
Engel & Völkers anbefaler, at man får en kvalificeret specialist til at kontrollere den juridiske situation for byggeriet. Alt materiale er baseret på oplysninger, som Engel & Völkers anser for at være pålidelige, men fordi tredjeparter har leveret dem, kan Engel & Völkers ikke garantere, at de er nøjagtige eller fuldstændige, og de bør ikke bruges som sådan. Der tages forbehold for fejl, udeladelser og ændring af pris eller tilbagetrækning uden varsel. Tilgængelighed efter aftale. Skatter, notar- og registergebyrer skal betales af køberen, provisionen til ejendomsmægleren skal betales af sælgeren som fastsat i salgsmandatet.
Kontakt udbyder
Kontakt os
Engel Mallorca Invest S.L. behandler dine data i overensstemmelse med vores brugsbetingelser og Betingelser for databeskyttelse. Vi indsamler disse data til administration af din konto og, hvis du giver dit samtykke, til at sende dig kommercielle meddelelser fra os og Engel & Völkers-gruppen. Du kan udøve dine rettigheder til indsigt, berigtigelse, sletning og indsigelse i henhold til vores brugsbetingelser og Betingelser for databeskyttelse.