Tilmelding kræves
Log ind for at gemme denne ejendom som din favorit.
Opret en søgeopgave nu og modtag skræddersyede tilbud!
Opret søgeopgave Registrer dig nu og opret din personlige søgeopgave. Fra nu af modtager du automatisk de nyeste ejendomme, der matcher dine søgekriterier, via e-mail. Du kan til enhver tid ændre eller slette dine oprettede søgeopgaver.
Favoritter Du kan også markere dine favoritter i eksponeringen med ♡ i øverste højre hjørne og gemme dem på din konto.
Karakteristisk rækkehus i hjertet af Sóller
Hus, Køb | Spanien, Mallorca, Vest, Sóller
1.385.000 EUR
Pris
3
Soveværelse
3
Badeværelse
161 ㎡
Samlet areal
E&V ID W-02YB0I
Anmod om yderligere oplysninger
Udstyr og særlige kendetegn ved dette hus
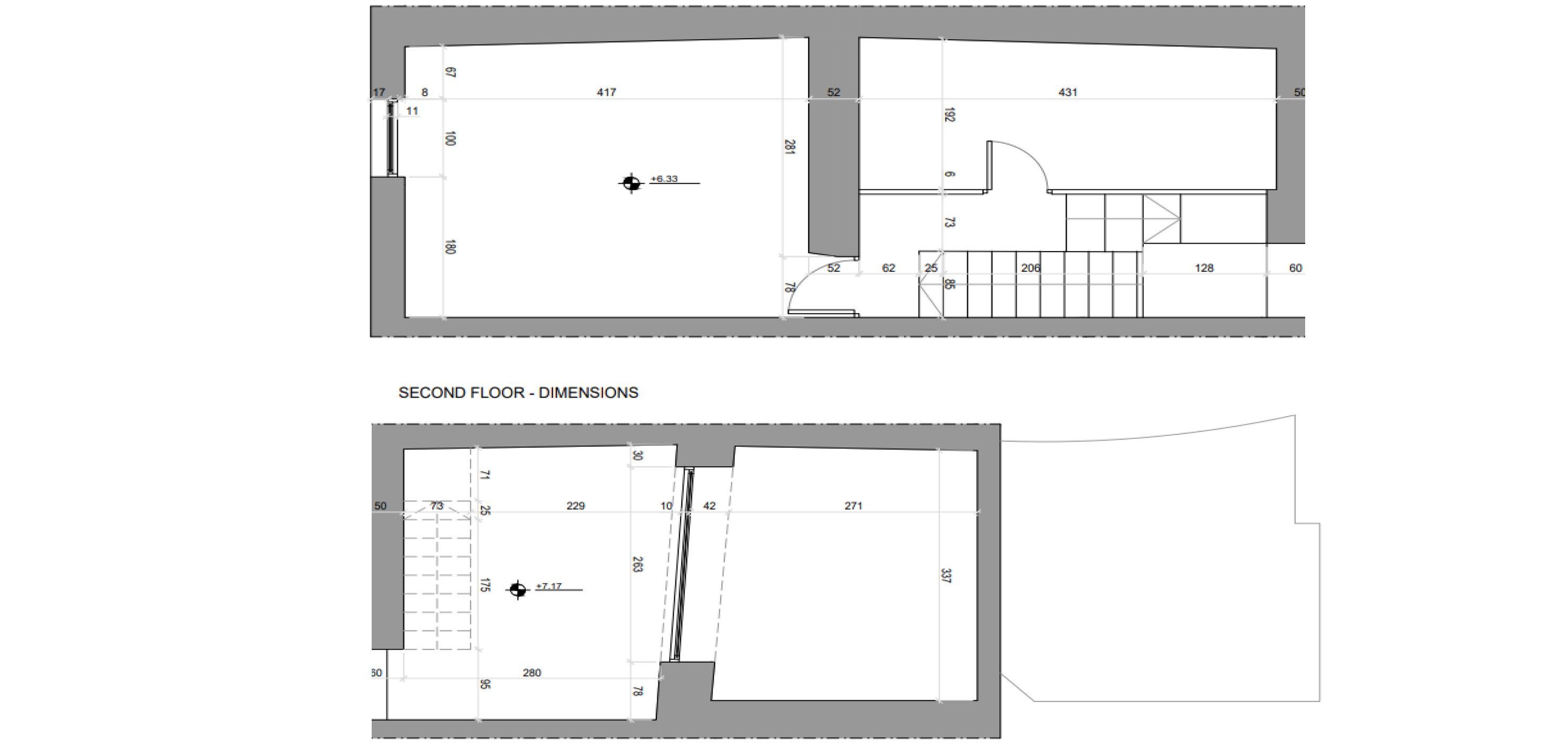
Type: Hus • Region: Vest • Seneste restaurering: 2024 • Samlet areal: 161 ㎡ • Værelser: 7 • Soveværelse: 3 • Badeværelse: 3 • Altaner: 1 • Terrasse • Varmeform: Split-klimaanlæg • Varmeform: Elektrisk opvarmning
Dette charmerende moderne mallorcinske
rækkehus i Sóller ligger kun få minutters
minutters gang fra landsbyens centrum.
Ejendommen med et boligareal på 161 m2
består af en entré, der er karakteristisk
for rækkehuse på Mallorca, hvorfra du
adgang til din egen stilfulde kælder i
kælderen og gennem en lille trappe til
den åbne stue/spisestue.
Herfra har du også adgang til chill-out
terrasse med jacuzzi.
På 1. sal er der et børneværelse/gæsteværelse
værelse/gæsteværelse med en-suite badeværelse,
et vaskerum og det rummelige åbne plan
hovedområde med separat toilet og
og påklædningsværelse.
På 2. sal er der endnu et børneværelse/gæsteværelse
værelse/gæsteværelse med separat badeværelse,
samt en spise- og opholdsstue med tilstødende
balkon og udendørs køkken.
Herfra fører en ståltrappe til selve
den egentlige stue med chill-out-område
og tagterrasse med fantastisk
udsigt over bjergene.
Ejendommen er fuldstændig
renoveret med materialer af høj kvalitet.
Inventaret lader heller ikke noget tilbage
at ønske.
En lille kælder, et åbent køkken med kogeø
åbent køkken med kogeø, parketgulve af høj
parketgulve af høj kvalitet i alle opholdsrum,
designerbadeværelser, udendørs køkken,
jacuzzi og meget mere.
Smagfulde møbler og dekoration fuldender dette virkelig interessante tilbud.
Vi ser frem til at vise dig din drømmebolig i hjertet af Sóller.
Engel & Völkers Sóller
Impressum
Registreringsnummer: GOIBE724048/2024
Sóller: Beliggenhed og omgivelser for denne ejendom
Sóller, en travl by i hjertet af Tramuntana, nær øens smukke vestkyst, har nogle af de mest eksklusive ejendomme på Mallorca: rækkehuse, traditionelle landejendomme og elegante villaer. Byen ligger kun 30 minutters kørsel fra Palma takket være den gratis tunnel. Sóller udmærkede sig i den internationale citrushandel i det XVIII. og XIX. århundrede og opnåede at få bygget toget fra Palma i begyndelsen af det XX. århundrede. En sporvogn fra Sóller til havnen fulgte kort efter. Toget fra Palma og træsporvognen, der kører mellem byen og havnen, fortsætter med at glæde turisterne med deres maleriske originale vogne. Sóllers kosmopolitiske livsstil førte til, at byen blev et af landets modernistiske højdepunkter. Blandt de mange huse og bygninger i modernistisk stil finder vi Sant Bartomeu-kirken på byens torv. Sóller har en førsteklasses infrastruktur: supermarkeder, butikker, sundheds- og sportsfaciliteter. Det er et ideelt sted at dyrke trekking, mountainbiking eller klatring, og golfklubben Son Termes ligger kun 20 minutters kørsel væk. Byen har et fint udvalg af restauranter, barer, cafeterier, hoteller og wellness-centre, og det lokale lørdagsmarked er blomstrende. Den har en fantastisk botanisk have, museer som Can Prunera-museet og en udstilling af Joan Miró og Pablo Picasso på jernbanestationen, som tidligere var det sommerhus, hvor de to kunstnere plejede at mødes. Byen fejrer hvert år populære fester som 'Es Firó' og kulturelle begivenheder som den klassiske musikfestival i Sóllers havn.
Energioplysninger
• energiforbrugskoefficient: 106.4 kWh/(m2*a) • CO2-emission: 28.2 kg/m2 • CO2-emissionsklasse: D • Varmeform: Elektrisk opvarmning • Energieffektivitetsklasse: D
Disse ejendomme kunne også være interessante for dig
Kommissionens detaljer
Levering efter aftale
Engel & Völkers anbefaler, at man får en kvalificeret specialist til at kontrollere den juridiske situation for byggeriet. Alt materiale er baseret på oplysninger, som Engel & Völkers anser for at være pålidelige, men fordi tredjeparter har leveret dem, kan Engel & Völkers ikke garantere, at de er nøjagtige eller fuldstændige, og de bør ikke bruges som sådan. Der tages forbehold for fejl, udeladelser og ændring af pris eller tilbagetrækning uden varsel. Tilgængelighed efter aftale. Skatter, notar- og registergebyrer skal betales af køberen, provisionen til ejendomsmægleren skal betales af sælgeren som fastsat i salgsmandatet.
Kontakt udbyder
Kontakt os
EV West Properties S.L. behandler dine data i overensstemmelse med vores brugsbetingelser og Betingelser for databeskyttelse. Vi indsamler disse data til administration af din konto og, hvis du giver dit samtykke, til at sende dig kommercielle meddelelser fra os og Engel & Völkers-gruppen. Du kan udøve dine rettigheder til indsigt, berigtigelse, sletning og indsigelse i henhold til vores brugsbetingelser og Betingelser for databeskyttelse.