Eksklusiv lejlighed i hjertet af Santa Catalina

Lejlighed, Køb | Spanien, Mallorca, Palma, Santa Catalina

Property Price

695.000 EUR

Pris

Property Bedrooms

3

Soveværelse

Property Bathrooms

2

Badeværelse

Property Living area

126 ㎡

Boligareal

Property Total surface

134 ㎡

Samlet areal

E&V ID W-02V9Q5

Anmod om yderligere oplysninger

Udstyr og særlige kendetegn ved denne lejlighed

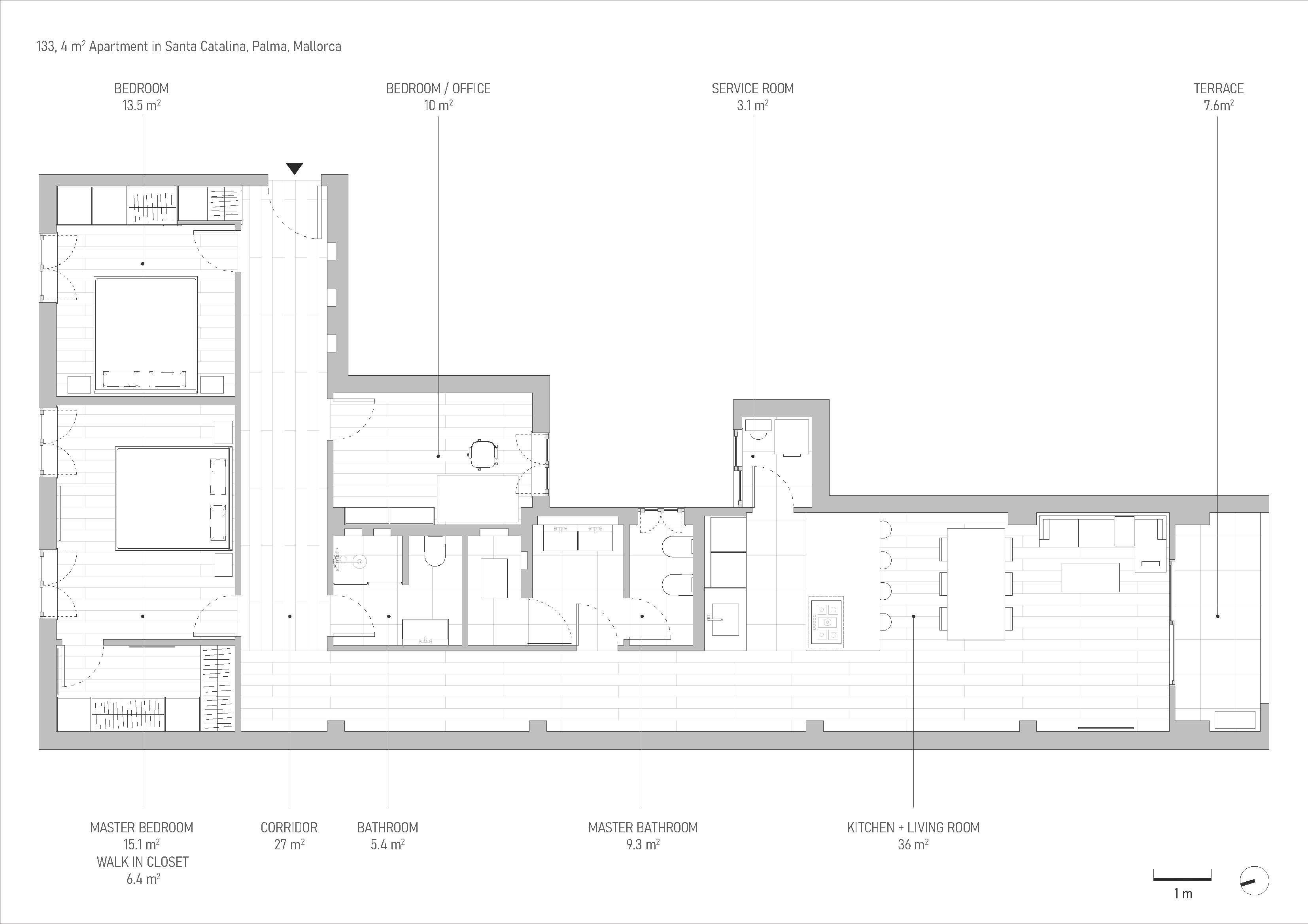
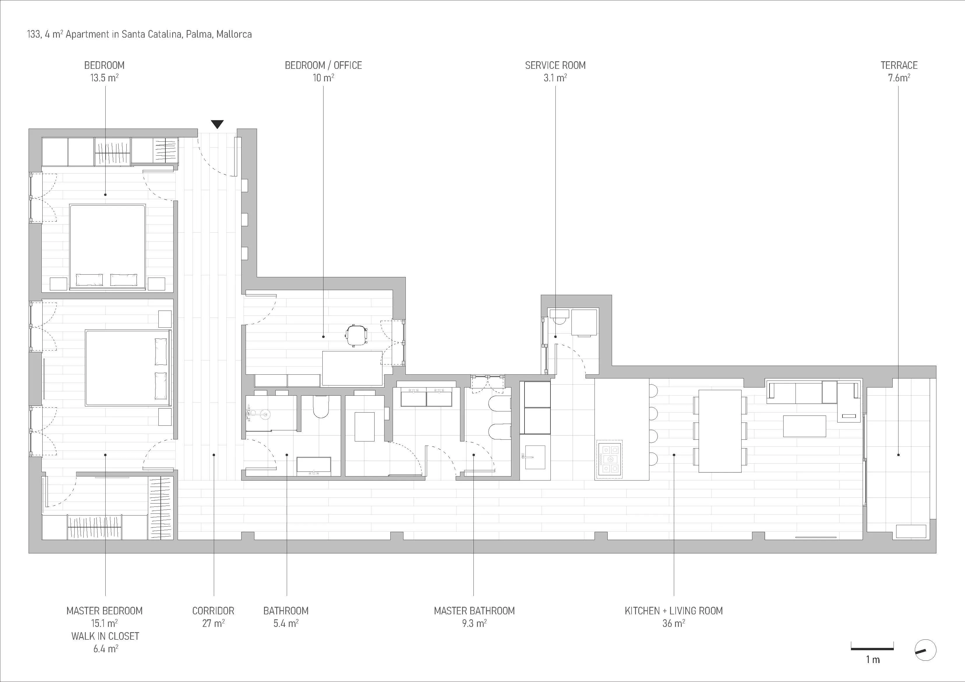
Type: Lejlighed • Region: Palma • Byggeår: 1975 • Seneste restaurering: 2024 • Samlet areal: 134 ㎡ • Værelser: 4 • Soveværelse: 3 • Badeværelse: 2 • Boligareal: 126 ㎡ • Altaner: 1 • Parkeringspladser: 1 • Indbygget køkken • Aircondition • Elevator • Gæstetoilet • Varmeform: Gulvvarme, Decentral klimaanlæg, Fuldt klimatiseret • Varmeform: Elektrisk opvarmning • Gulvbelægning: Fliser, Gulvbrædder

Velkommen til denne eksklusive lejlighed i hjertet af Santa Catalina, der tilbyder den perfekte kombination af moderne luksus og design! Denne smukke toværelses lejlighed er en rigtig perle. Det rummelige soveværelse har en walk-in-garderobe, der passer perfekt til din personlige stil. Ud over de to soveværelser er der et ekstra lille gæsteværelse eller kontor, som giver fleksibilitet til dine individuelle behov. De to badeværelser er blevet totalrenoveret og skinner nu også i elegant skandinavisk stil. Materialer af høj kvalitet og gulvvarme sikrer maksimal komfort og velvære på badeværelset. Lejligheden er blevet totalrenoveret og ombygget i skandinavisk stil, og der er kun brugt de bedste materialer af højeste kvalitet. Et gennemtænkt belysningskoncept understreger de rene linjer og den lyse atmosfære, der kendetegner dette hjem. Køkkenet er fuldt udstyret og tilbyder dig alt, hvad du behøver for at forkæle din familie eller venner med kulinariske lækkerier. De ægte træparketgulve giver rummene et varmt og indbydende præg, mens et moderne BUS-system giver dig mulighed for nemt at styre alle elektriske apparater via en app, uanset hvor du er. For ekstra komfort har lejligheden aircondition, som sikrer behagelige temperaturer hele året rundt. Nyd de solrige dage på den sydvendte altan og lad tankerne vandre. Lejligheden er klar til indflytning fra juni 2024 og giver dig en moderne boligoplevelse på et af de mest eftertragtede steder i Palma de Mallorca. Aftal en fremvisning i dag, og lad dig inspirere af dette unikke tilbud!

Engel & Völkers Palma Sydvest / Paseo Marítimo

Palma Sydvest / Paseo Marítimo
Avda. Gabriel Roca, 6 | 07014 Palma | Spanien
Engel Mallorca Invest S.L.

Registreringsnummer: GOIBE728083/2024

Santa Catalina: Beliggenhed og omgivelser for denne ejendom

Med omkring 300 solskinsdage om året er Palma den perfekte by for dem, der elsker godt vejr. I de senere år er bydelene omkring Santa Catalina, havneområdet og Paseo Marítimo blevet forvandlet og byder på en virkelig kosmopolitisk atmosfære. Santa Catalina har udviklet sig til den baleariske hovedstads in-quarter. Dets store udvalg af kunstneriske caféer, pop-up butikker og moderne restauranter giver en helt igennem international atmosfære. Takket være kvarterets skrånende form er der mange forskellige lejligheder, og både anden og tredje linje har også udsigt over Palmas havn. I den sydøstlige del af byen, direkte ved havnen, ligger Paseo Marítimo, et af byens mest kendte fritidsområder, og det tilstødende San Agustin. Ud over eksklusive diskoteker og restauranter udmærker Paseo Marítimo sig ved en fantastisk udsigt over havnen og katedralen, som kun ligger få minutters gang derfra.

Energioplysninger

Byggeår: 1975 • CO2-emission: 45.6 kg/m2 • CO2-emissionsklasse: E • Varmeform: Elektrisk opvarmning • Energieffektivitetsklasse: E

Kommissionens detaljer

Levering efter aftale

Engel & Völkers anbefaler, at man får en kvalificeret specialist til at kontrollere den juridiske situation for byggeriet. Alt materiale er baseret på oplysninger, som Engel & Völkers anser for at være pålidelige, men fordi tredjeparter har leveret dem, kan Engel & Völkers ikke garantere, at de er nøjagtige eller fuldstændige, og de bør ikke bruges som sådan. Der tages forbehold for fejl, udeladelser og ændring af pris eller tilbagetrækning uden varsel. Tilgængelighed efter aftale. Skatter, notar- og registergebyrer skal betales af køberen, provisionen til ejendomsmægleren skal betales af sælgeren som fastsat i salgsmandatet.

Image contact agent

Kontakt udbyder

Tilmeld dig vores nyhedsbrev

Modtag de seneste ejendomsnyheder fra Mallorca direkte i din indbakke.

Verification could not be loaded. Please refresh the page and try again.

Balearev GmbH behandler dine data i overensstemmelse med vores Handelsbetingelser og privatlivspolitik. Vi indsamler dem for at administrere din konto og, hvis du accepterer det, for at sende dig markedsføringskommunikation fra os og fra Engel & Völkers-gruppen. Du kan blandt andet udøve dine rettigheder til indsigt, berigtigelse, sletning og indsigelse i overensstemmelse med vores Handelsbetingelser og privatlivspolitik.

Følg os på sociale medier

Denne hjemmeside bruger cookies til digital analyse, forbedring af din brugeroplevelse og personalisering af reklamer. Du kan Se vores cookiepolitik her