Tilmelding kræves
Log ind for at gemme denne ejendom som din favorit.
Opret en søgeopgave nu og modtag skræddersyede tilbud!
Opret søgeopgave Registrer dig nu og opret din personlige søgeopgave. Fra nu af modtager du automatisk de nyeste ejendomme, der matcher dine søgekriterier, via e-mail. Du kan til enhver tid ændre eller slette dine oprettede søgeopgaver.
Favoritter Du kan også markere dine favoritter i eksponeringen med ♡ i øverste højre hjørne og gemme dem på din konto.
Byggegrund med projekt og byggetilladelse i Llucmajor
Grundstykke, Køb | Spanien, Mallorca, Sydpå, Llucmajor
350.000 EUR
Pris
2,47 ㏊
Grundstykke
E&V ID W-02NUZ4
Anmod om yderligere oplysninger
Udstyr og særlige kendetegn ved denne ejendom
Type: Grundstykke • Region: Sydpå • Grundstykke: 2,47 ㏊
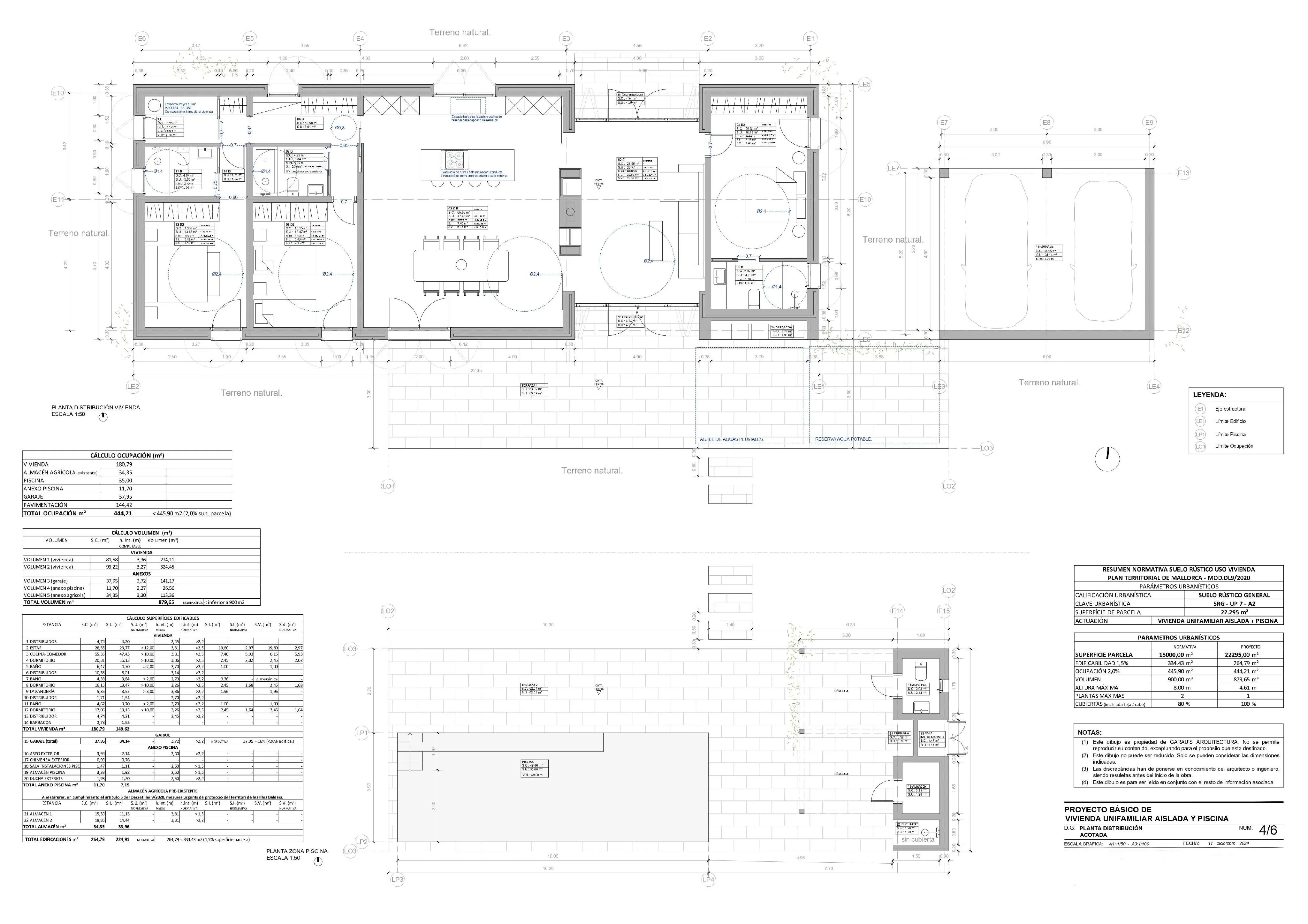
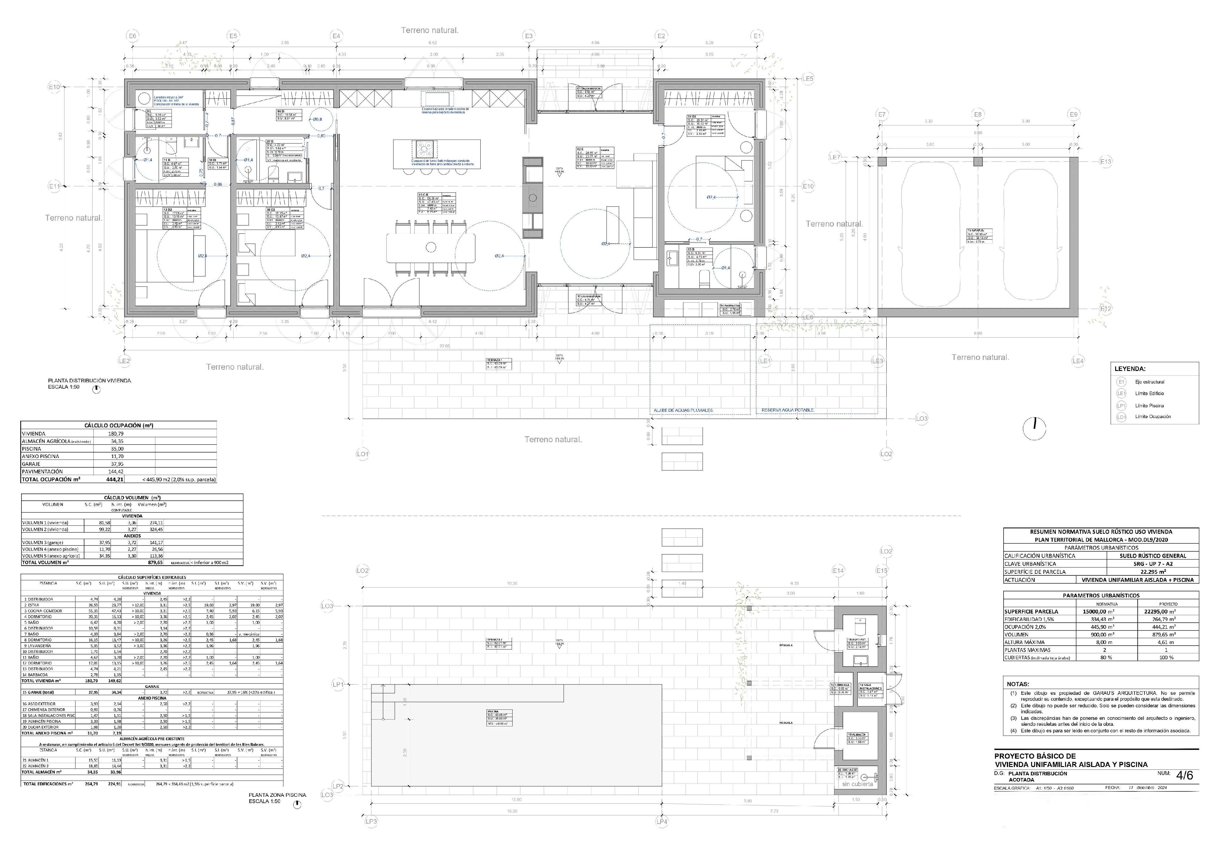
Mellem de bølgende bakker i Llucmajor og den autentiske charme i Campos skabes et fristed, der kombinerer tidløs arkitektur med øens uspolerede natur. Dette eksklusive finca-projekt i ét plan omdefinerer middelhavslivet: et lysgennemstrømmet rumkoncept, der imponerer med sin klarhed og rummelighed, udfolder sig på 264 m².
Tre elegante soveværelser, hvert med eget badeværelse en suite, giver maksimalt privatliv, mens det åbne opholdsområde flyder problemfrit ud i de rummelige terrasser. Midtpunktet i det udendørs område er den private pool - en oase af ro under den mallorcinske sol. Et andet højdepunkt er den separate casita, som giver plads til individuelle drømme, hvad enten det er som et eksklusivt gæstehus eller som et kreativt studie.
Bæredygtighed og selvforsyning er i fokus her: Takket være avanceret solteknologi og en sofistikeret vandforsyning kan du nyde fuldstændig uafhængighed. Beliggenheden er uovertruffen: På bare 10 minutter kan du mærke det fine, hvide sand på den berømte naturstrand Es Trenc under dine fødder.
Med den grundlæggende licens (Licencia Básica en ejecución), der allerede er indsendt, er vejen banet for dit drømmehus. Her køber du ikke bare en grund, men nøglen til en livsstil, der perfekt harmonerer med elegance, natur og nærhed til havet.
Salgsprisen omfatter grunden, projektet og/eller byggetilladelsen, men ikke den færdige ejendom. Køber skal afklare de gældende bygningsregler med en arkitekt.
Engel & Völkers Llucmajor
Impressum
Registreringsnummer: GOIBE728083/2024
Llucmajor: Beliggenhed og omgivelser for denne ejendom
Llucmajor kommune er geografisk set den største på øen. Byen ligger ca. 15 minutters kørsel sydøst for Palmas lufthavn ved foden af Puig de Randa. Llucmajor er en rolig by med smalle gader og et marked på onsdage, fredage og søndage. Det ombyggede fiskemarked er nu hjemsted for flere af rådhusets afdelinger, f.eks. turistkontoret. Pladsen foran rådhuset blev færdiggjort i 2010 og er nu en fodgængerzone, hvor der også afholdes frugt- og grøntsagsmarkeder. Pladsen bliver stadig mere populær blandt cyklister, da Llucmajor har mange cykelstier. Om fredagen strækker markedet sig gennem halvdelen af byen, fra rådhuset til Plaça d'Espanya til gaden Bisbe Taixequet og fra Paseo Jaime III til Ronda de Migjorn. Llucmajor kommune har alt fra tapasbarer til 5-stjernede hoteller og mange butikker.
Energioplysninger
Under behandling
Kommissionens detaljer
Levering efter aftale
Engel & Völkers fungerer udelukkende som mellemmand og kan i denne egenskab ikke yde juridisk rådgivning om bygningsreglementer eller andre juridiske forhold og kan heller ikke garantere for de udbudte ejendommes tilstand. Alle oplysninger er udelukkende baseret på data leveret af ejerne til Engel & Völkers, og der gives derfor ingen garanti for fuldstændigheden, nøjagtigheden og aktualiteten af disse oplysninger. Der tages forbehold for fejl, prisændringer, udeladelser og/eller tilbagetrækning fra markedet uden forudgående varsel. Det anbefales at engagere en specialiseret advokat til at verificere ejendommens juridiske og urbanistiske status og om nødvendigt en uafhængig landmåler til at kontrollere ejendommens status. Tilgængelighed skal aftales. Overdragelsesgebyrer, moms, notar- og registreringsgebyrer i forbindelse med købet skal afholdes af køberen. I henhold til salgsformularen skal mægleromkostningerne betales af sælgeren.
Kontakt udbyder
Kontakt os
EV Mallorca Property S.L. behandler dine data i overensstemmelse med vores brugsbetingelser og Betingelser for databeskyttelse. Vi indsamler disse data til administration af din konto og, hvis du giver dit samtykke, til at sende dig kommercielle meddelelser fra os og Engel & Völkers-gruppen. Du kan udøve dine rettigheder til indsigt, berigtigelse, sletning og indsigelse i henhold til vores brugsbetingelser og Betingelser for databeskyttelse.