És necessari registrar-se
Si us plau iniciï sessió per a afegir aquesta propietat com a favorita.
Creu una alerta de cerca personalitzada i sigui el primer a assabentar-se de noves propietats!
Crear una alerta de cerca Registri's ara i creu el seu alerta de cerca i rebi automàticament un correu electrònic amb detalls de les últimes propietats que coincideixin amb els seus criteris de cerca. La cerca es pot modificar o eliminar en qualsevol moment.
Favorits Si desitja guardar una propietat en els favorits del seu compte, només ha de fer clic en el ♡ situat a la cantonada superior dreta del exposé en línia.
Terreny amb projecte i vistes a la badia en Son Gual
Solars, Comprar | Espanya, Mallorca, Central, Son Gual
675.000 EUR
Preu
2.054 ㎡
Superfície de parcel·la
E&V ID W-02ZEGZ
Sol·licitar més informació
Serveis i característiques especials d'aquest solar
Tipus: Solar • Regió: Central • Superfície de parcel·la: 2.054 ㎡
A la zona de Son Gual es troba aquest terreny que destaca principalment per la seva ubicació elevada, la qual cosa li permet oferir vistes buidades cap a la badia de Palma. Es tracta d'una de les poques parcel·les actualment disponibles en el mercat que compta amb aquesta panoràmica. L'entorn es caracteritza per la seva tranquil·litat i privacitat, situant-se en una urbanització en auge a uns 15 minuts de Palma.
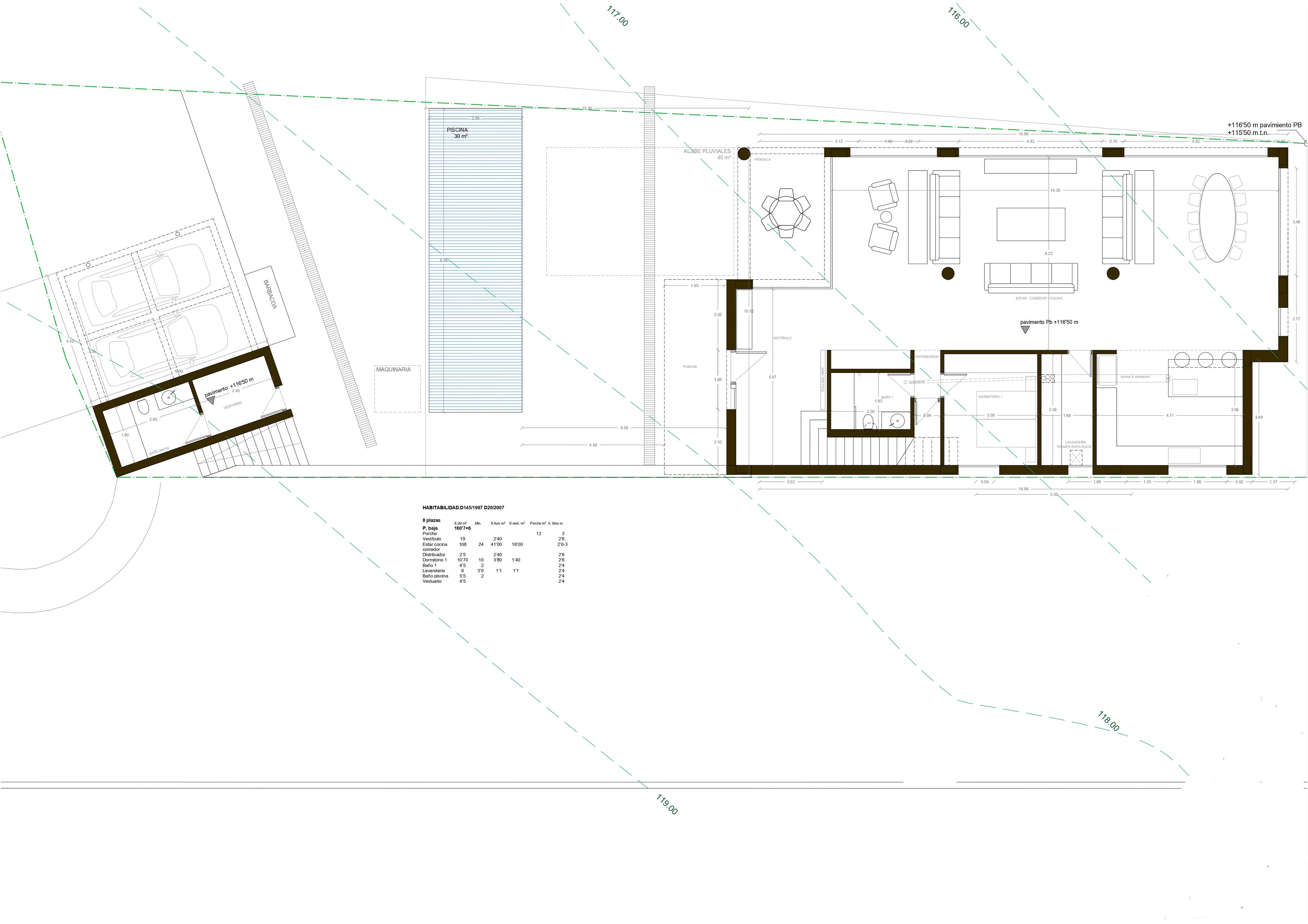
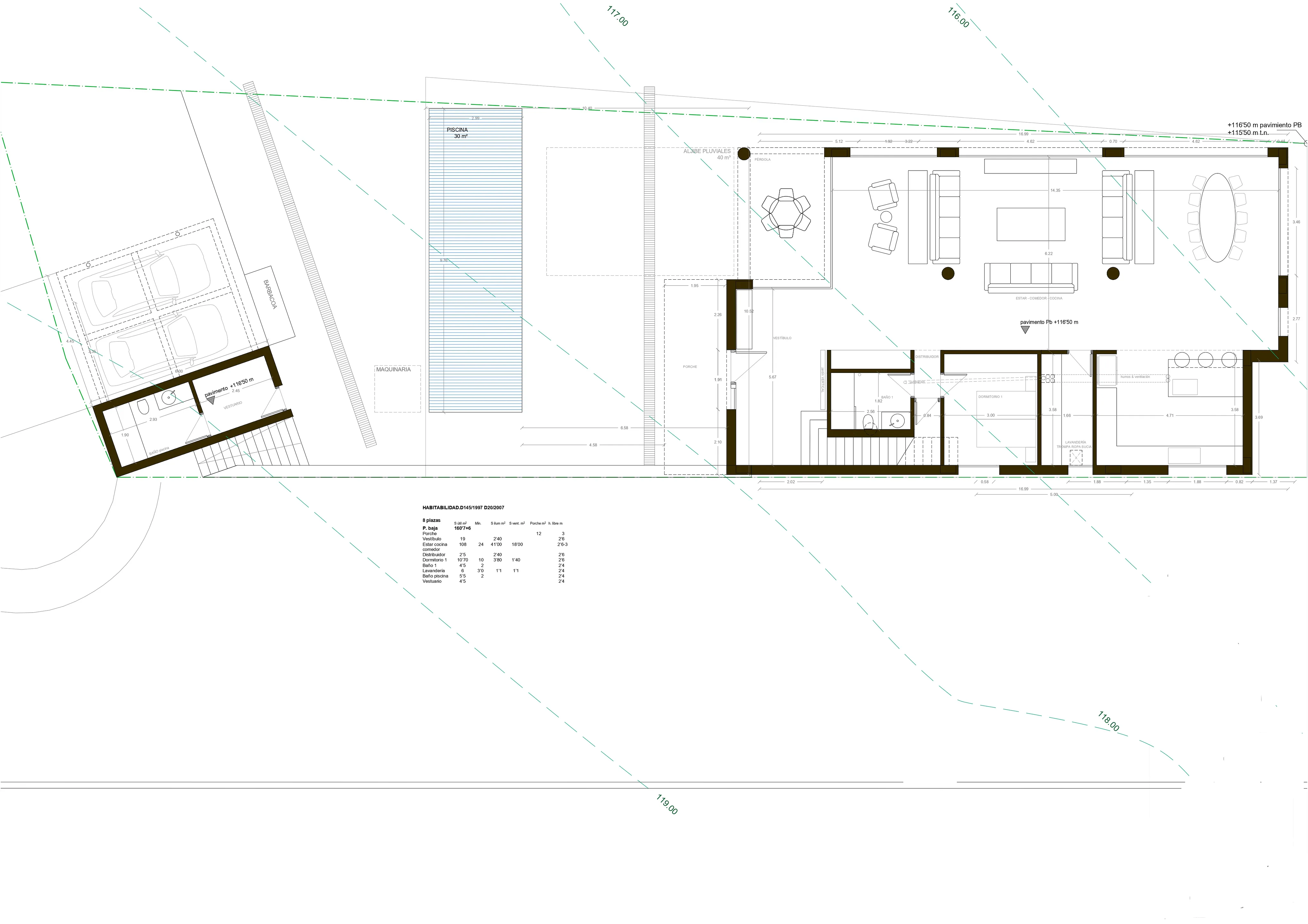
El terreny s'embeni amb projecte i llicència per a la construcció d'un habitatge unifamiliar amb piscina. El disseny actual contempla una casa de 340 m2 distribuïts en planta baixa i planta pis, amb quatre dormitoris i quatre banys. Tanmateix, a diferència d'altres parcel·les de Son Gual, aquesta permet una edificabilitat superior, d'1 m3 per cada m2 de terreny, cosa que significa que el projecte actual consumeix aproximadament la meitat del volum permès. Gràcies a això, existeix el potencial de duplicar considerablement els m2 actuals, permetent afegir un soterrani o una planta addicional segons les necessitats del nou propietari.
Quant a l'exterior, la terrassa i la piscina s'han projectat aprofitant l'orientació sud-oest de la parcel·la. Aquesta ubicació és ideal per gaudir de llum natural durant tot el dia i d'espectaculars posades de sol sobre la badia. L'amplitud del terreny i la seva normativa urbanística ofereixen una flexibilitat superior a la majoria d'opcions en la zona, permetent tant executar el projecte actual com desenvolupar un habitatge de majors dimensions.
Informem els interessats que la venda d'aquest terreny està subjecta a IVA.
Engel & Völkers Santa Maria
Avís Legal
Número de registre: GOIBE728083/2024
Son Gual: Ubicació i voltants d'aquest immoble
Son Gual is a residential area set approx 15 km from Palma. It is located near Sant Jordi and Puntiró, with easy access by road to Palma, Can Pastilla, Arenal and the airport. It’s also home to the renowned Golf course set close to the residential area which is so newly developed that many streets remain unnamed. It has a number of fantastic plots for building detached houses in a peaceful and private environment, perfect for families.
Informació energètica
En procés
Aquests immobles també li podrien interessar
Condicions generals
Disponibilitat a acordar
Engel . V.lkers intervé únicament com a intermediari i, per tant, no pot oferir assessorament legal ni urbanístic, ni donar cap garantia sobre l'estat dels immobles oferts. Totes les dades es basen exclusivament en informació proporcionada a Engel . V.lkers pels propietaris i per tant Engel a V.lkers no assumeix cap responsabilitat per la integritat, exactitud i actualitat d'aquestes dades. L'oferta se subjecta a errors, canvis de preu, omissió i/o retirada del mercat sense avís previ. Es recomana contractar un advocat especialitzat per verificar l'estat legal i urbanístic de la propietat i, en cas necessari, un perit independent que comprovi l'estat de la propietat. Disponibilitat a acordar. Les despeses de transmissió patrimonial, IVA, notari i registre són a càrrec del comprador. Segons el Full d'encàrrec, les despeses d'intermediació són a càrrec del venedor.
Contactar Assessor
Contacteu-nos
EV Mallorca Property S.L. tracta les seves dades segons nostres v. Els recollim per a administrar el seu compte, i si accepta, enviar-li comunicacions comercials nostres i del grup Engel & Völkers. Pot exercir els seus drets d'accés, rectificació, supressió i oposició, entre altres, segons nostres Condicions d'Ús i Privacitat.